红屋平面

红屋的内部结构图
图片尺寸640x762
图2-1-5b "红屋"平面图
图片尺寸521x348
罗望红厢,感受厦门红砖大厝的前世今生
图片尺寸580x1279
美国143平米的红屋
图片尺寸1200x1200
莫里斯的红屋
图片尺寸704x576
莫里斯.ppt
图片尺寸1440x810
威廉·莫里斯的红屋(3)
图片尺寸400x611
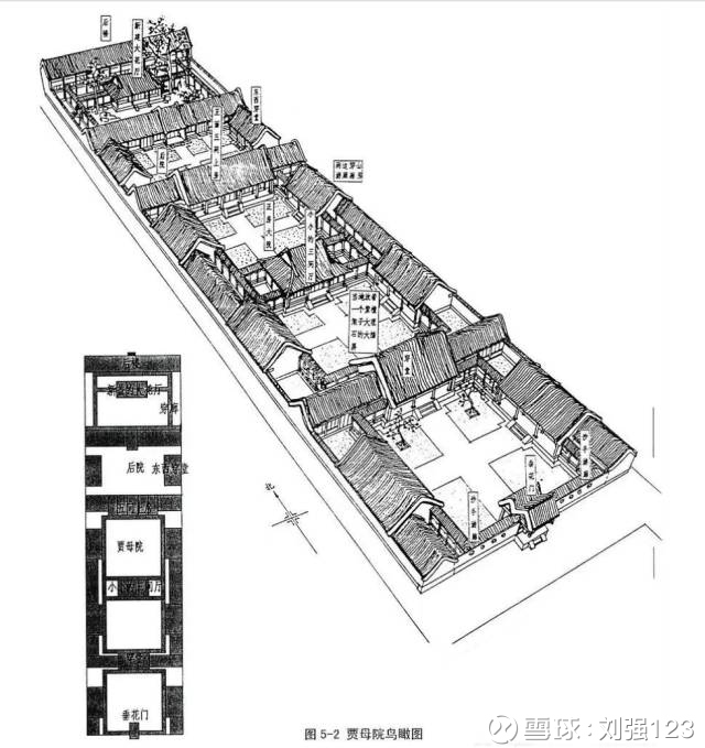
《红楼梦》建筑图解
图片尺寸640x679
香山革命纪念馆和双清别墅相册
图片尺寸4032x3024
神还原 | 红楼梦建筑手绘
图片尺寸1080x588
威廉·莫里斯ppt
图片尺寸1080x810
从莫里斯到柳宗悦
图片尺寸640x428
二层平面图△ 西立面图△ 北立面图△ 剖面图a-a△ 剖面图b-b
图片尺寸2000x1350
美国143平米的红屋
图片尺寸1200x1200
其实红屋最屌的部分在于,除了房子本身的建筑外,里面全部家具,灯具
图片尺寸800x512
"红屋"的平面相对自由,房间的布置不完全受几何化的外边界控制,故而
图片尺寸600x401
他参考《外建史》,画了74幅建筑手绘_平面图
图片尺寸1080x840
胡雪岩故居堪称清代末年中国巨商第一豪宅
图片尺寸651x388
《红楼梦》怡红院内部陈设
图片尺寸440x304
斯坦纳住宅平面图▲ 斯坦纳住宅▲ 维也纳分离派展览馆▲ 红屋
图片尺寸1080x1363