红砖美术馆平面图手绘

用专业角度看网红打卡胜地红砖美术馆
图片尺寸1080x1150
红砖美术馆分析ppt
图片尺寸1080x810
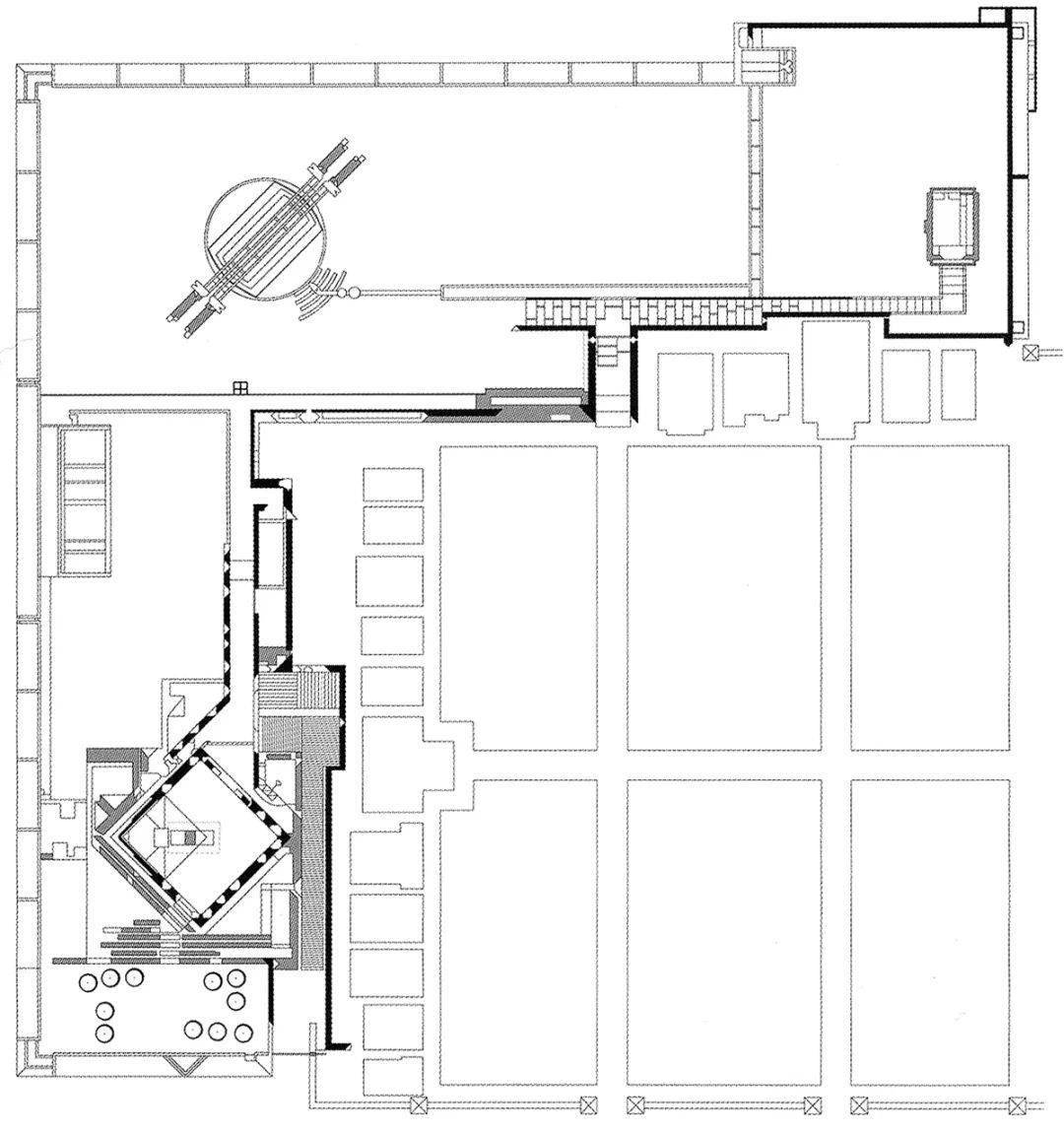
为了方便大家,小爱放上一张红砖美术馆的平面图,便于您了解.
图片尺寸1080x1146
稳重内敛透着古典之美的清水红砖雕塑黄石市群艺馆中南建筑设计院
图片尺寸2000x1414
从宣纸笔墨印章中提炼出沭阳美术馆
图片尺寸775x1000
04- 中央美术学院美术馆 红砖美术馆
图片尺寸1080x810
他参考《外建史》,画了74幅建筑手绘_平面图
图片尺寸823x1200
131243 红砖美术馆/董豫赣 平面
图片尺寸658x683
北京红砖美术馆设计designfortheredbrickcontemporaryart
图片尺寸1160x472
北京红砖美术馆董豫赣
图片尺寸1000x836
建筑讲堂04快题解析空间形态之河畔艺术馆设计
图片尺寸1130x774
山海美术馆 | 矩阵纵横
图片尺寸1700x1209
红砖美术馆之后董豫赣在乡下建了座现代版古典园林
图片尺寸800x1200
山东美术馆 / 同济大学建筑设计研究院,三层平面
图片尺寸1582x890
从宣纸,笔墨,印章中提炼出沭阳美术馆
图片尺寸775x1000
04- 中央美术学院美术馆 红砖美术馆ppt
图片尺寸1080x810
华盛顿国家美术馆东馆 平面图△朗香教堂 平面图△柏林爱乐音乐厅
图片尺寸1080x776
红砖美术馆总平面图
图片尺寸1080x810
西岸美术馆 / david chipperfield architects,平面图
图片尺寸1484x1000
今日分享三:纪念馆设计--大禹手绘建筑快题优秀作品欣赏
图片尺寸1000x714