肋板式桥台

桥台肋板式桥台承台和肋板坐标计算
图片尺寸640x512![[公告][公开课]肋板式桥台计算建模分析5月16日](https://imgs.wantubizhi.com/img/ADDA3C5D760C6828B77B505A29D43E835EE30938B07A7BCBCD4FE24CE5E34AD98D202BEC7D163F98D507E566892F89E553BF43849D2A67F5FB68189857010717B29DD2355DAD5A357357248407079300CA81D0ED59934B39146DA3438A744A05)
[公告][公开课]肋板式桥台计算建模分析5月16日
图片尺寸597x394
肋板式桥台一般构造
图片尺寸560x420
重力式桥台
图片尺寸560x275
肋式桥台台背回填与锥坡应同时填筑
图片尺寸560x244
一种肋板式挡墙桥台
图片尺寸1583x1413
肋板式桥台优化设计-2013.10.23
图片尺寸337x372
桥施工图75页(肋板台)-路桥工程图纸 板桥桥台一般构造图海量建筑资料
图片尺寸400x299
肋板桥台一般构造图
图片尺寸560x389
钢筋混凝土薄壁桥台:适用于软弱地基的条件,但其构造和施工比较复杂
图片尺寸437x356
供应天水桥梁加固支座更换
图片尺寸436x254
巴塞大桥0#桥台肋板施工完成,等待盖梁施工.
图片尺寸2670x2000
肋板式桥台优化设计
图片尺寸1528x1971
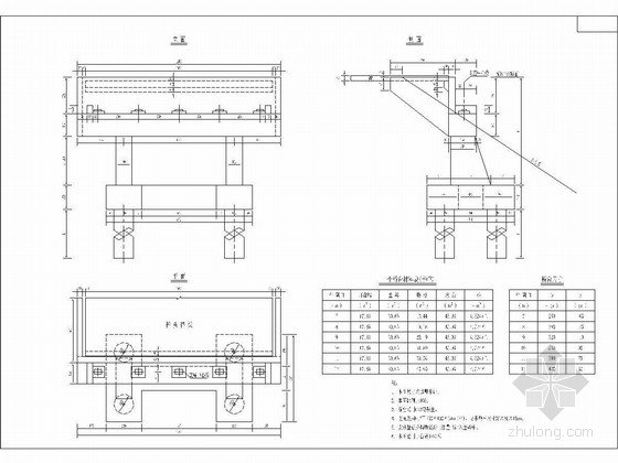
肋板式桥台肋板钢筋构造
图片尺寸560x420
巴塞大桥4#桥台肋板施工完成,等待盖梁施工.
图片尺寸980x654
巴塞大桥0#桥台肋板施工完成,等待盖梁施工.
图片尺寸2667x2000
l=30m b=26m 分离式路基肋板式桥台一般构造图
图片尺寸560x420
4,圆截面及矩形截面双柱墩,空心薄壁墩,桩柱式桥台,肋板式台具体尺寸
图片尺寸544x235
大桥全长247米,下部结构桥墩采用柱式桥墩,桩基础,桥台采用肋板式桥台
图片尺寸1000x666
6月23日蓟运河特大桥0#肋板 a style=display: inline; href=
图片尺寸2048x1536