良渚文化艺术中心手绘
![[杭州]良渚文化艺术中心建筑方案设计施工图](https://imgs.wantubizhi.com/img/735A5D1F980B52A636CC46F12F2D1A731A1FE7F79CE058DB3E75F5FC18D32B6383C53AE6BD5FAF3151D40410CC05C069DCBAD04AEA64F43644403472B36F7F3108AC749319868DEC0906E7B6DD2D50A154E218B1AE9A8E259A25EB9014026D09)
[杭州]良渚文化艺术中心建筑方案设计施工图
图片尺寸760x570
良渚 速写|纯艺术|绘画|uuw余_原创作品-站酷zcool
图片尺寸1280x1707
尚谷一周抄绘 | 良渚文化博物馆抄绘评图
图片尺寸1379x942![[分享]1周1绘!第1期晒手绘开始啦](https://imgs.wantubizhi.com/img/735A5D1F980B52A636CC46F12F2D1A7359369F4AF3C333A9239AF503D22DA257C362EFEE0009EDCCC8C9ECCFA9D2C3AD85199F6DB73CEE4BB579B93A7D6FC35684BFFF7BB81EA66585CC79225ADFA476DE94D992DD3A6210002B8D450238542C)
[分享]1周1绘!第1期晒手绘开始啦
图片尺寸1500x959
空间
图片尺寸1280x894
良渚古城遗址公园(增强版)
图片尺寸1984x1432
尚谷一周抄绘 | 良渚文化博物馆抄绘评图
图片尺寸1267x912
02日本札幌的墓园03良渚文化中心04上海保利大剧院05墨西哥蒙特雷大学
图片尺寸750x563
尚谷一周抄绘 | 良渚文化博物馆抄绘评图
图片尺寸782x575
良渚古城遗址公园(增强版)
图片尺寸1888x1376
良渚 速写|纯艺术|绘画|uuw余 - 原创作品 - 站酷 (zcool)
图片尺寸1280x960
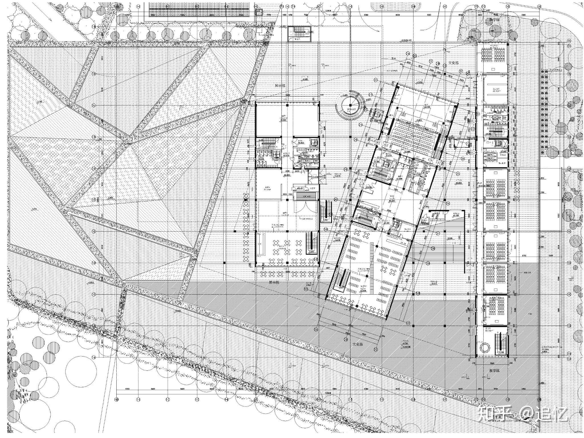
请问谁有良渚文化艺术中心的平面图
图片尺寸2048x1536
今年考同济建筑的同学们快来看看别人都复习到什么程度了
图片尺寸1280x896
day6良渚文化博物馆
图片尺寸1080x1439
尚谷一周抄绘 | 良渚文化博物馆抄绘评图
图片尺寸1496x883
这座建筑就是如今的"大屋顶"——良渚文化艺术中心.
图片尺寸660x437
尚谷一周抄绘 | 良渚文化博物馆抄绘评图
图片尺寸1134x750
临平五小,采二蓝媒小记者良渚古城遗址参观手记新鲜出炉!_腾讯新闻
图片尺寸1000x823
良渚古城遗址公园(增强版)
图片尺寸1760x1344
戴卫奇普菲尔德良渚文化博物馆设计
图片尺寸417x556