茶室cad

分享茶馆平面施工图资料下载
图片尺寸560x420
如何打造一间茶室
图片尺寸1060x836![[分享]中式室内包房资料下载](https://imgs.wantubizhi.com/img/735A5D1F980B52A636CC46F12F2D1A73A080722875A7617E706D665E3D4978C633B4619F203481D0CC3643037EE21D74525EA5045286F0A6E04DF5C378510E8B4D55ECA62D55733DA5A57AD8912759C86BD37F6F54861C0DECBAC90CC9E097FA)
[分享]中式室内包房资料下载
图片尺寸702x527
新中式会所茶室设计施工图(附效果图)
图片尺寸760x631
茶楼古建施工图纸资料下载-经七路茶楼室内设计施工图纸(含85个cad图)
图片尺寸1210x609
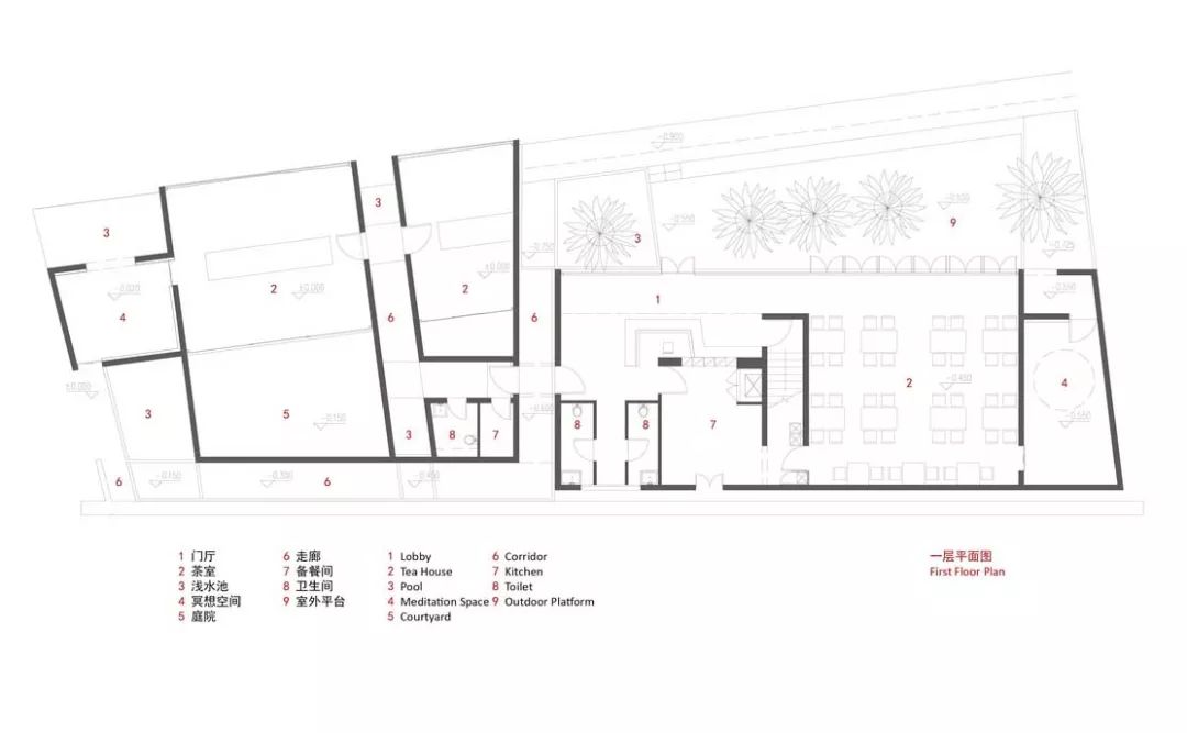
茶室平面图△生活馆一层△生活馆二层联合设计丨木田设计,珥本设计
图片尺寸1080x836
田园茶室6个不错的茶室设计
图片尺寸660x804
在中国最美禅意小镇开一间茶室惊艳了时光i无锡拈花湾茶室
图片尺寸640x504
分享室内茶室装修图资料下载
图片尺寸560x420
尚谷评图同济12初试小茶室设计
图片尺寸1483x980
茶室丨禅溪如一,禅茶不二
图片尺寸640x561
内蒙古 设计风格:新中式风格 图纸张数:77张 图纸格式:jpg,cad2000
图片尺寸1600x1200
施工图项目位置:江西设计风格:中式风格图纸格式:jpg,cad2000图纸张数
图片尺寸560x373
分享饮料su模型资料下载
图片尺寸760x570
一间粮仓改造的漂浮在河边的茶室
图片尺寸1080x646
200㎡现代中式茶室设计—世界太喧嚣,与茶许你一方净土 !
图片尺寸720x509
分享茶室茶楼资料下载
图片尺寸741x556
茶园茶室茶境
图片尺寸1080x667
关键词: 茶室装修效果图茶楼cad图纸室内设计手稿
图片尺寸760x570
▼茶室立面图和剖面图项目信息:项目地点:湖南省平江县白茅村;开发
图片尺寸1080x680