蓝球架标准尺寸图片

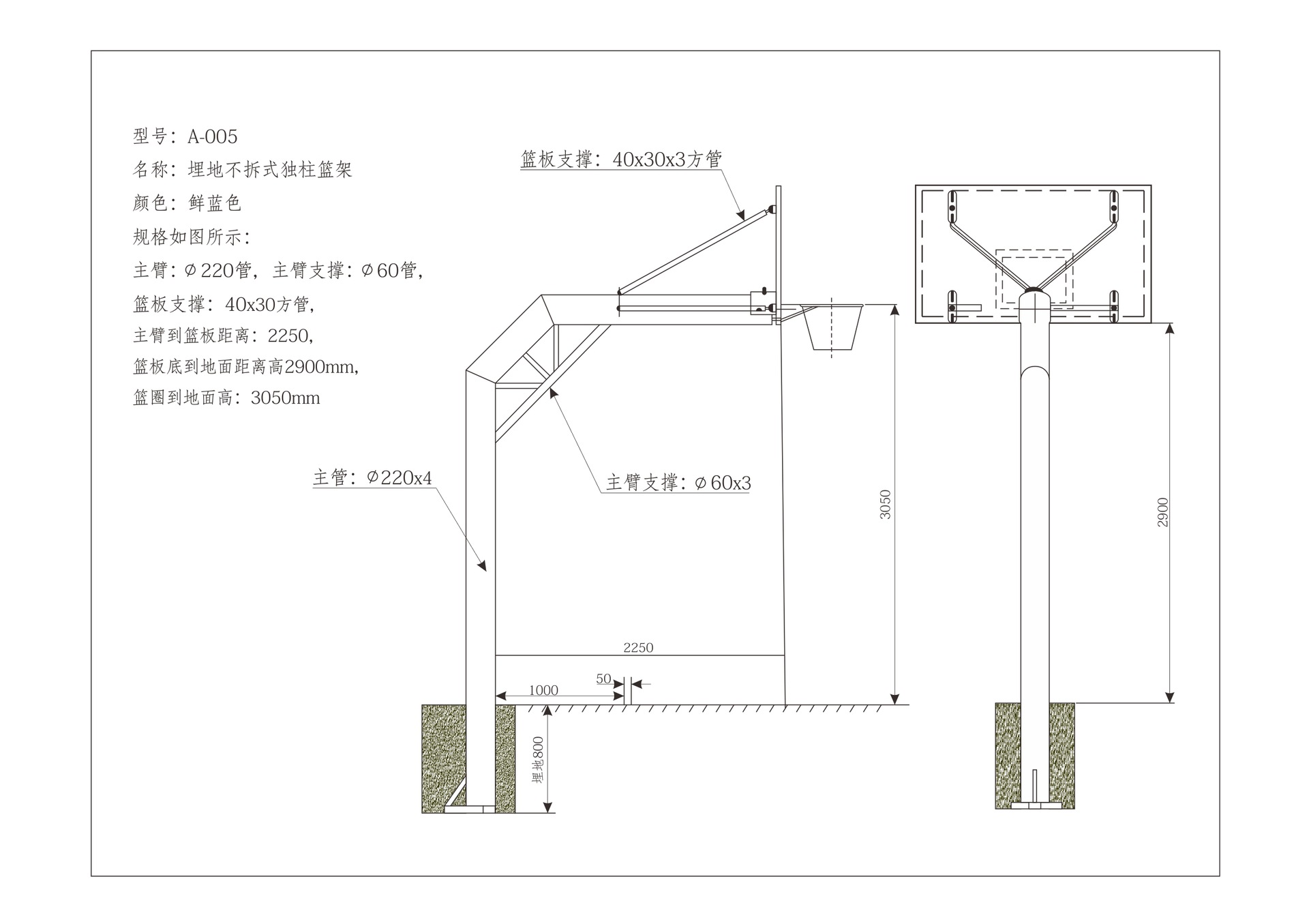
成人篮球架户外标准篮球架固定地埋式篮球架室外篮球架家用
图片尺寸790x1119
标准户外成人可移动落地式篮球架可升降篮球框
图片尺寸655x1000
标准篮球架高度 篮球架尺寸
图片尺寸479x418
博森特(bosente)篮球架 户外成人标准预埋蓝球架 地埋式篮球架子
图片尺寸790x941
篮球 #篮球架 #篮球场尺寸 #篮球场划线 #篮球场施工 - 兑趑
图片尺寸1920x1920
方管埋地球架户外运动篮球架固定式成人篮球架批发休闲篮球架
图片尺寸1920x1355
批发圆管方管地埋篮球架 移动平箱凹箱篮球架 室外成人标准篮球架
图片尺寸790x1061
国标篮球架户外成人家用升降成年篮球架移动地埋固定室外蓝球框架
图片尺寸800x800
批发圆管方管地埋篮球架 移动平箱凹箱篮球架 室外成人标准篮球架
图片尺寸790x973
乌鲁木齐篮球架价格全国火热开售等您抢购厦门市悬臂篮球架
图片尺寸747x681
埋地篮球架 台山固定篮球架全国包安装
图片尺寸750x736
【安顺市移动式篮球架 液压式篮球架 凹箱/平箱篮球架价格】询价单
图片尺寸750x817
深圳篮球培训篮球架尺寸示意图
图片尺寸1102x666
武汉篮球架武汉学校体育用品篮球架子箱式篮球架玻璃板篮球架
图片尺寸758x878
南宁移动式篮球架 户外标准型篮球架 南宁飞跃体育专营店
图片尺寸750x1130
都匀移动篮球架厂家高清图
图片尺寸750x759
篮球架的标准尺寸
图片尺寸1093x664
地埋篮球架,户外篮球架,63195
图片尺寸1224x966
秦皇岛移动式篮球架箱式篮球架单臂篮球架篮球架款式全
图片尺寸980x959
篮球架 户外标准预埋蓝球架 地埋式篮球架子 圆管-普通版
图片尺寸790x916