衡重式挡土墙示意图

衡重式挡土墙一般构造
图片尺寸638x578
衡重式挡墙
图片尺寸560x370
衡重式挡土墙一般构造图2019
图片尺寸1600x1280
衡重式挡土墙工程量计算
图片尺寸487x543
衡重式挡墙
图片尺寸457x329
衡重式挡土墙大样图
图片尺寸760x570
衡重式挡土墙的模板怎么算?各位老师
图片尺寸563x692
常见挡土墙结构形式.png
图片尺寸760x645
如下图衡重式挡土墙,是下面线以下为基础,还是上面线以下为基础
图片尺寸703x538
常用的挡土墙结构形式及特点
图片尺寸1339x1200
重力式挡土墙
图片尺寸498x560
对于超高重力式挡土墙(一般指6m以上的挡墙)即有半重力式,衡重力
图片尺寸998x704
第一次画衡重式挡墙的基础开挖 没头绪 有没有师傅以前画过的 给我
图片尺寸808x535
一级建造师# 挡土墙分类
图片尺寸932x1280
公路衡重式路肩挡土墙设计图
图片尺寸534x560
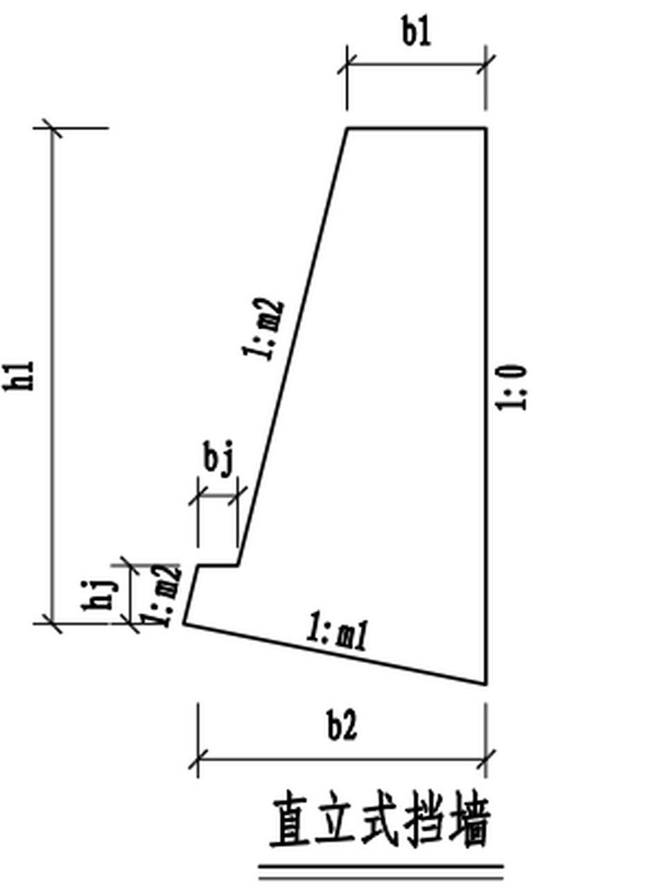
衡重式挡土墙如何计算截面面积
图片尺寸733x834
重力式挡土墙
图片尺寸676x498
路基防护工程挡土墙设计图(衡重式)
图片尺寸300x225
一种衡重式挡墙的制作方法
图片尺寸547x493
17j008挡土墙重力式衡重式悬臂式
图片尺寸1600x1131