装修施工图怎么画

海南三亚154㎡现代四居家装样板间施工图
图片尺寸3000x2250
样板间施工图案例
图片尺寸3000x2120
海南三亚154㎡现代四居家装样板间施工图
图片尺寸3000x2250
现代三居装修施工图
图片尺寸1600x1280
佛山115㎡三室室内装修设计施工图附明细.今天分享的是给广东 - 抖音
图片尺寸1080x1440
上海世纪花园欧式简约样板房装修施工图(附效果图)
图片尺寸1432x1074
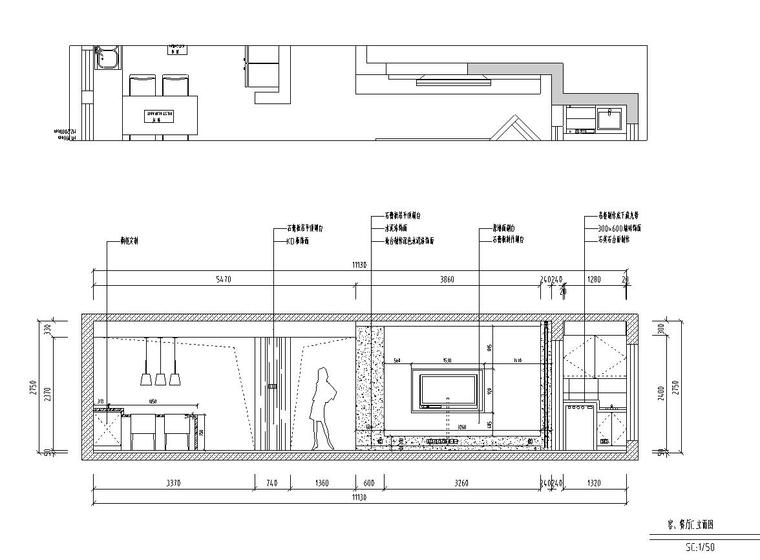
现代灰色简洁-四室两厅住宅装修施工图设计
图片尺寸760x560
汉阳60㎡现代低调奢华风格婚房装修施工图
图片尺寸760x637
cad施工图怎么画!
图片尺寸960x1280
天津室内装修纯设计方案测量量尺出图绘制cad户型图施工图服务
图片尺寸800x800
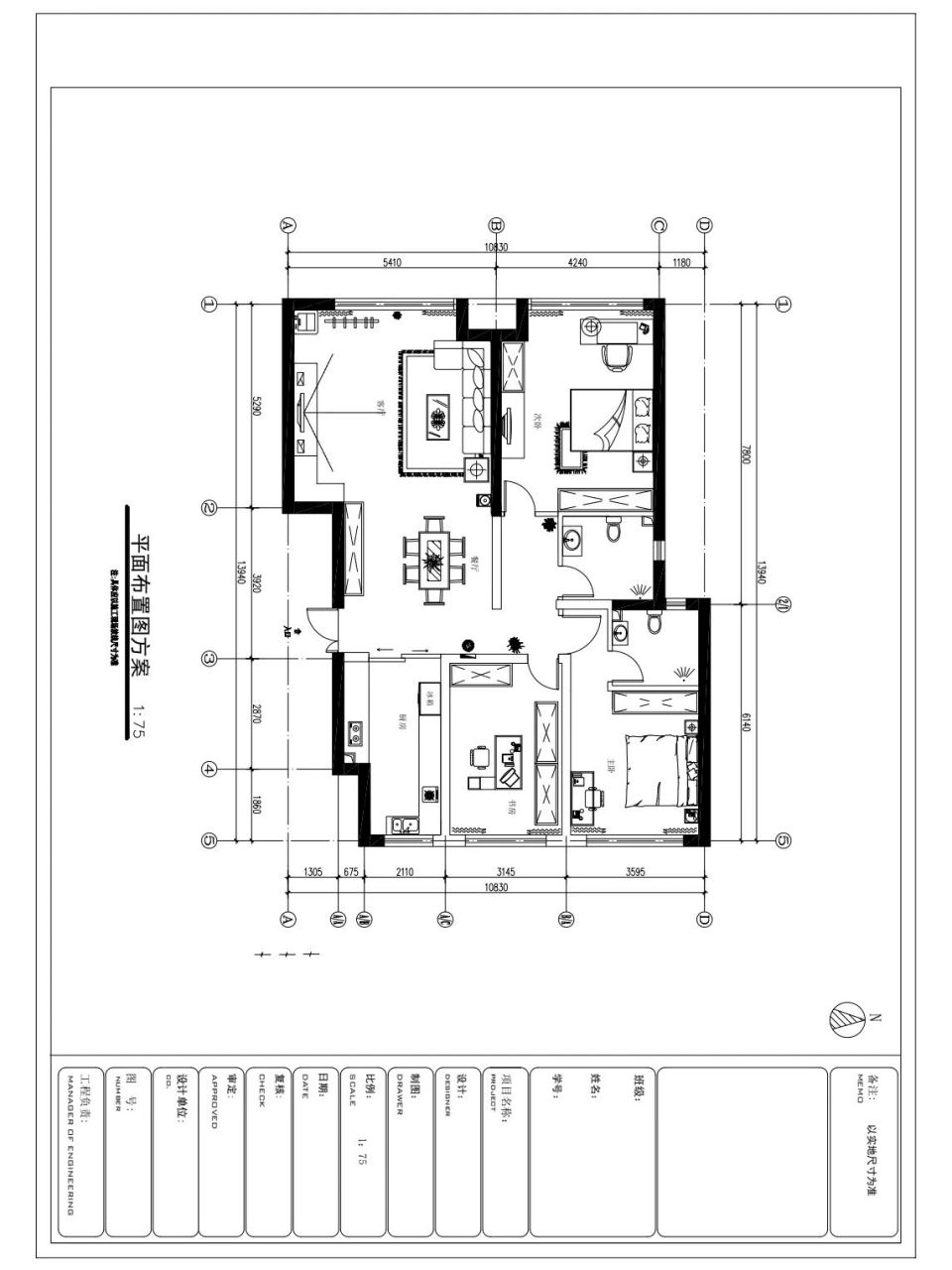
245㎡简约美式风三居室住宅装修施工图设计
图片尺寸760x594
这样的简易施工图怎么画
图片尺寸2448x3264
新房装修家装设计装修设计全套方案和水电施工图
图片尺寸2565x1834
245㎡简约美式风三居室住宅装修施工图设计
图片尺寸760x598
新房装修前要出施工图吗_新房装修油漆工进场施工步骤_新房装修流程
图片尺寸4000x3000
某三室两厅106平方米住宅装修图纸
图片尺寸1440x1020
室内装修施工图包括哪些内容 室内装修施工图怎么看
图片尺寸1104x793
北欧风格简单爱主题两室两厅装修施工图设计
图片尺寸760x582
美发店装修吊顶图_装修吊顶平面施工图_施工平面图纸
图片尺寸1655x1170
两层现代风格四居室住宅装修施工图 效果图
图片尺寸2252x1770