角筋图纸

角筋有多少根什么型号的箍筋有多少根什么型号的b边一侧中部筋h边一侧
图片尺寸1991x1955
角筋
图片尺寸1128x701
12c22中的12根角筋是图形中的哪几根
图片尺寸443x868
角筋是八根的怎么设置角筋设置的8c32就点不进去截面编辑
图片尺寸615x682
请问gtj2021版柱多排角筋如何布置?
图片尺寸658x607
这种柱的角筋该怎么设置
图片尺寸909x804
这5个哪个是角筋
图片尺寸703x581
图中角筋长度的计算公式是什么
图片尺寸2304x1728
老师请问图中的角筋怎么定义
图片尺寸604x641
67水池转角筋怎么布置啊
图片尺寸559x828
角筋有多少根什么型号的箍筋有多少根什么型号的b边一侧中部筋h边一侧
图片尺寸2456x1526
这个角筋是什么意思?
图片尺寸482x565
请问此图角筋,b边一侧中部,h边一侧中部是多少啊?
图片尺寸468x497
师傅们,这图的角筋和边筋怎么看-服务新干线答疑解惑
图片尺寸1105x704
角筋
图片尺寸448x682
这柱子角筋有两根是啥情况
图片尺寸365x500
框架柱角筋为4根25,中部筋2根25 3根22如何部中部钢筋?
图片尺寸500x466
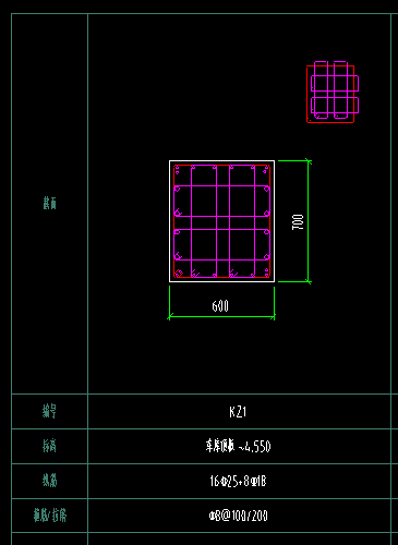
柱子钢筋分两排,角筋4 25 b方向 25 6/2 h方向4 25请问6/2是什么意思
图片尺寸288x284
两桩承台梁式配筋的角筋是多大的?图纸如下
图片尺寸384x260
这个角筋是什么意思?
图片尺寸982x703