计算跨径

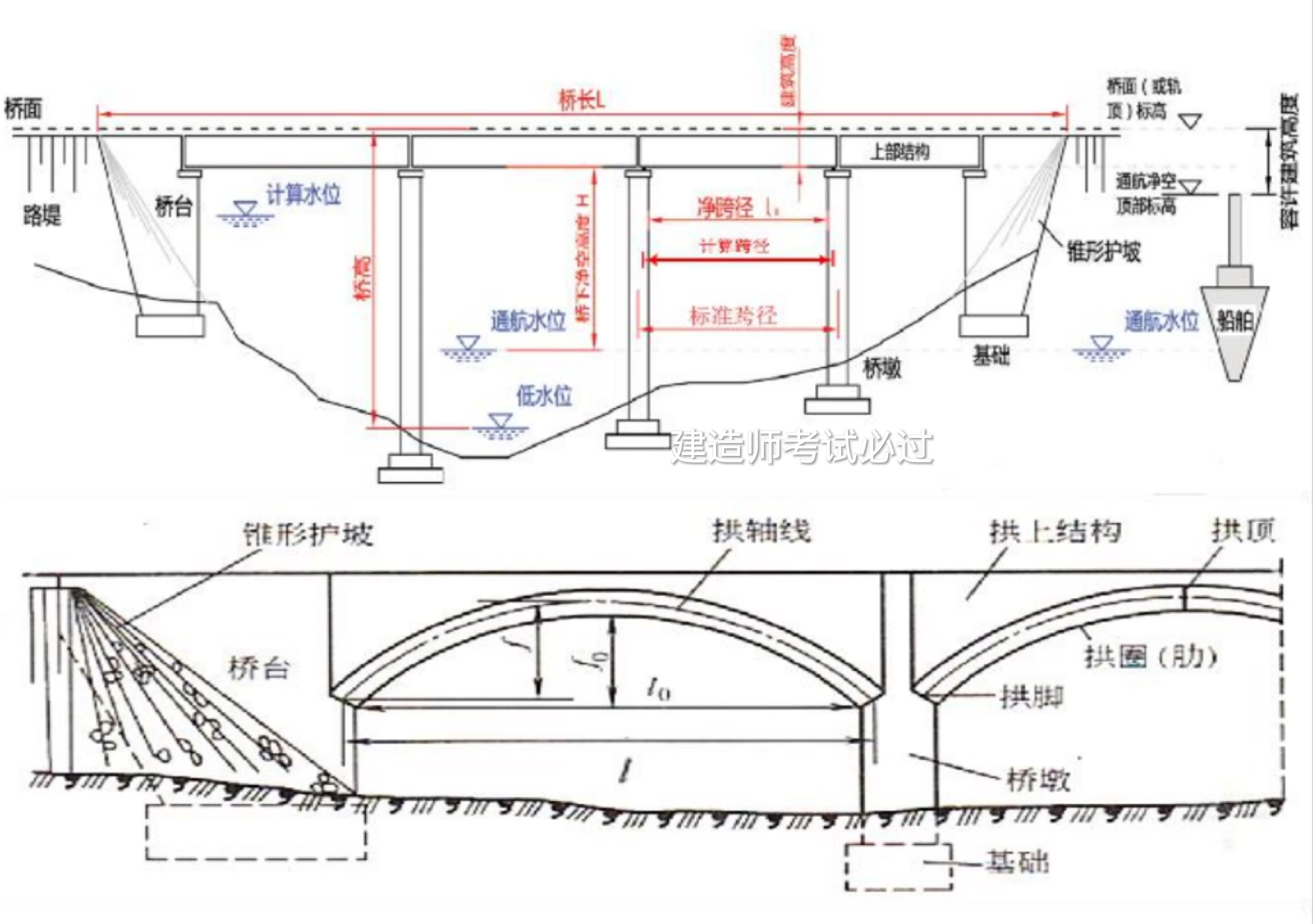
一图看懂桥梁术语,净跨径 计算跨径 标准跨径
图片尺寸1920x1352
桥梁计算跨径和标准跨径的区别是什么?
图片尺寸398x306
计算桥梁的跨径
图片尺寸820x406
一图看懂桥梁术语,净跨径 计算跨径 标准跨径
图片尺寸1440x810
管道跨距表
图片尺寸727x1006
管道跨距
图片尺寸900x1325
桥梁标准跨径l标2000m梁长l200041996cm桥梁的计算跨径l0199620231950
图片尺寸614x310
分类 工程科技 能源/化工 > 管道支架跨距及荷载(按挠度计算的理论值)
图片尺寸1047x653
多孔总跨径计算.png
图片尺寸715x393
跨度和值速查表
图片尺寸1108x683
5米,弧高0.7米,算一算弧的长度是多少米
图片尺寸1187x751
管道最大允许跨距表
图片尺寸732x529
计算桥梁的跨径
图片尺寸773x249
管道重量跨距表
图片尺寸1137x548
桥梁计算跨径的介绍
图片尺寸550x328
1000 m跨径混凝土拱桥研究
图片尺寸991x363
129m跨径单孔中承式钢管混凝土组合拱桥梁计算书
图片尺寸800x1131
管径换算表
图片尺寸693x963
热线: 1,梁式桥净跨径是设计洪水位上相邻两个桥墩(或桥台)之间的净距
图片尺寸349x235
法兰尺寸对照表(完整版)
图片尺寸723x1045