设备减震基础的做法图

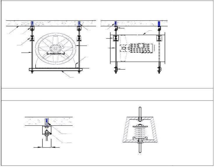
机电安装工程中的消声减震做法收藏这篇就够了
图片尺寸974x846
机电安装工程中的消声减震做法收藏这篇就够了
图片尺寸1080x810
中央空调设备系统与管道的减振措施
图片尺寸505x363
02 水泵减震基础示意图
图片尺寸760x373
控制设备 海克斯康龙门式三坐标选贝尔金阻尼弹簧隔震器bkds减震垫
图片尺寸800x315
机电安装工程中的消声减震做法收藏这篇就够了
图片尺寸649x430
机电安装工程中的消声减震做法收藏这篇就够了
图片尺寸1080x609
机电安装工程中的消声减震做法收藏这篇就够了
图片尺寸734x575
消防水泵设备减震基础采用橡胶减震垫
图片尺寸560x388
一种屋面水泵减震基础装置的制作方法
图片尺寸558x333
机电安装工程中的消声减震做法收藏这篇就够了
图片尺寸660x481
机电安装工程中的消声减震做法收藏这篇就够了
图片尺寸1080x723
水泵减震器台座空调风机惰性块隔振基础缓冲基座减震支座惯性平台
图片尺寸640x438
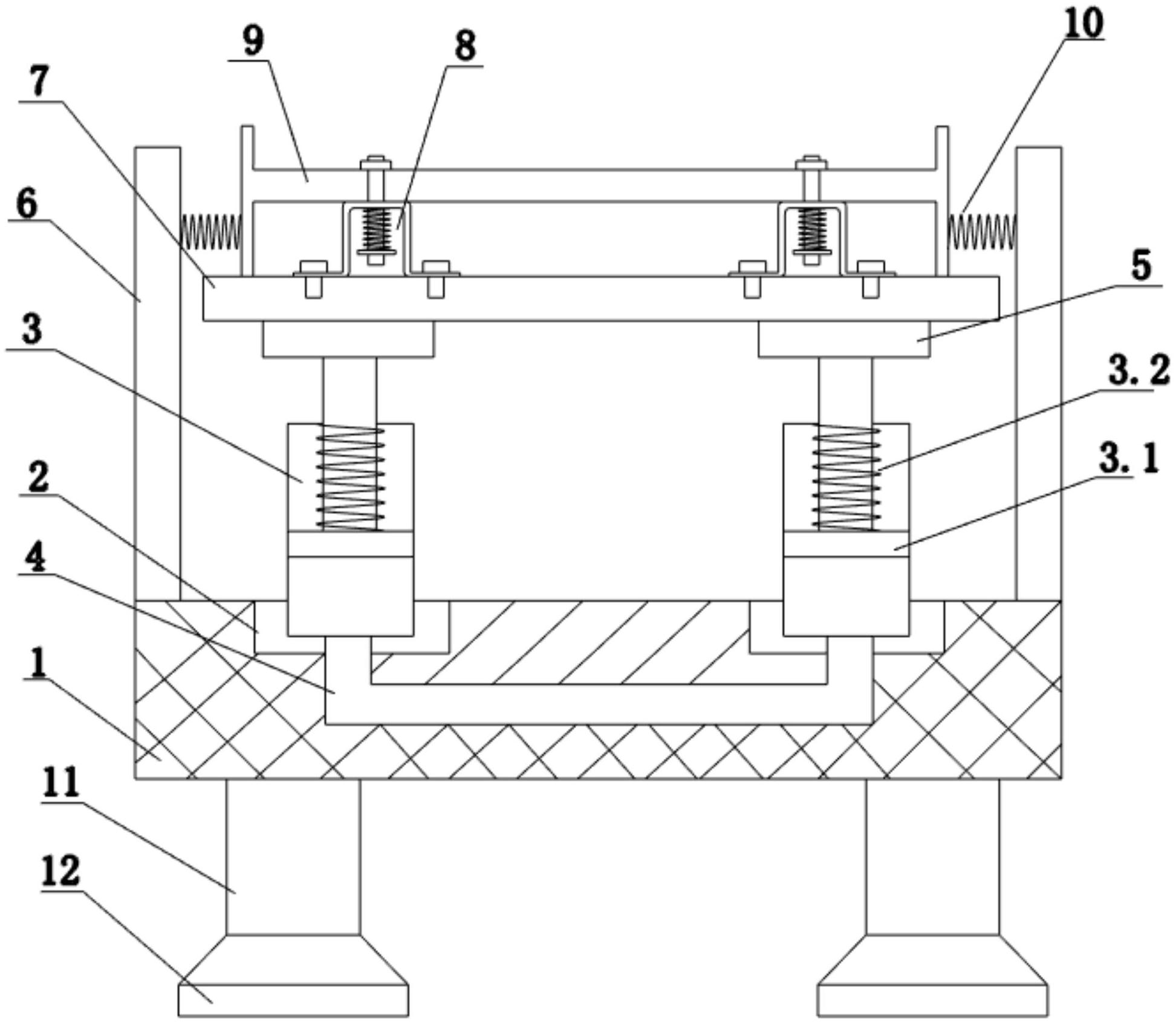
cn112900478a_一种设备的减震基础结构及其施工方法
图片尺寸2755x1678
应充分考虑设备设备的减振措施即砼基础 阻尼减震器 型钢底座 橡胶
图片尺寸640x1438
一种机电设备用减震装置
图片尺寸1945x1692
机电安装工程中的消声减震做法收藏这篇就够了
图片尺寸1080x810
减震器,应用范围非常的广泛,主要用于风机,管道,动力设备的吊装隔震
图片尺寸433x417
减震技术丨基础隔震施工技术在高层建筑中的应用
图片尺寸1080x634
机电安装工程中的消声减震做法收藏这篇就够了
图片尺寸1080x558