调节池CAD图
![[分享]方形调节池cad资料下载](https://imgs.wantubizhi.com/img/A1A61BAA66193547F3A6DD7D8EE527E9CAC61DEB100BCCDF519E87D95C1E019897EFAE277D965D1F4E98F16057B9246C0A0FD3E83F44E9A288E4FD5A3C8569B8F9D850CC6CEB1E9DCE195314A06608703B785AA69FB0CBB61CDBA17EC907B2B2)
[分享]方形调节池cad资料下载
图片尺寸760x543
分享废水调节池施工方案资料下载
图片尺寸560x420![[分享]调节池设计说明资料下载](https://imgs.wantubizhi.com/img/A1A61BAA66193547F3A6DD7D8EE527E9203AC18CC6374E0E1C4FAE560D79C344EAEE1AFD6A3CC6CEC50C224F4380907B099D3D37C9FBB8686CAB46C8F589EC77CA1D539B48DB1899E71CC122EA23B14D2DD7BC013E01F53B277E4824BCC12058)
[分享]调节池设计说明资料下载
图片尺寸560x375
某调节池结构图
图片尺寸560x398
分享废水调节池施工方案资料下载
图片尺寸560x398
废水的预处理—格栅和筛网,调节池(附图纸 计算器)
图片尺寸640x443
废水的预处理—格栅和筛网,调节池(附图纸 计算器)
图片尺寸640x409
醋酸调节池工艺
图片尺寸560x402
分享污水调节池图纸资料下载
图片尺寸560x399
种类:平流式(重力式)沉砂池,曝气式沉砂池作用:从污水中分离密度较大
图片尺寸600x450![[扬州]钢筋混凝土结构排泥水调节池全套图纸](https://imgs.wantubizhi.com/img/ADDA3C5D760C6828B77B505A29D43E83E248D7C1185F6BBA06CB1A71A7C622C9421924346F05DFDFCBB4B27373761049BEF113ADCCC7E4672922C4746920D67E3B7E16367E394D9DB160830E1D4CDDC326A78B773EBD1E71562636A4700591B8)
[扬州]钢筋混凝土结构排泥水调节池全套图纸
图片尺寸760x646
废水的预处理—格栅和筛网,调节池(附图纸 计算器)
图片尺寸613x391
地埋式一体化污水处理设备主要参数详解
图片尺寸815x427
废水的预处理—格栅和筛网,调节池(附图纸 计算器)
图片尺寸615x645
分享电子废水处理设计资料下载
图片尺寸560x317
调节池提升泵——台风厂家
图片尺寸693x300
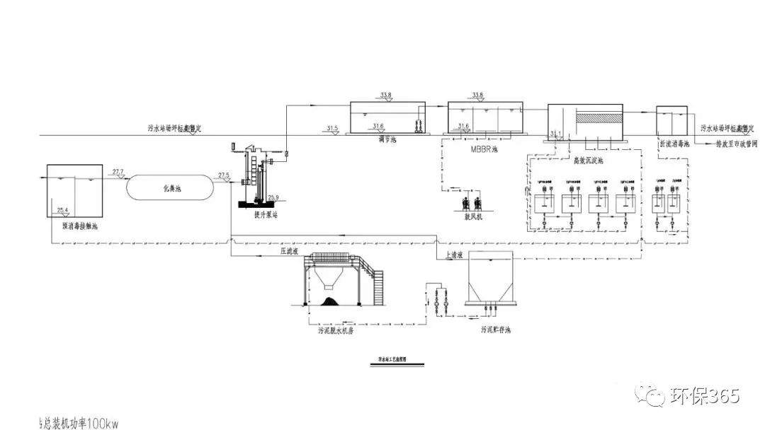
如下图,流程为:接触消毒-化粪池-调节池-mbbr池-高效沉淀池-消毒-排至
图片尺寸1080x608
科普丨国内主流污水处理工艺有哪些
图片尺寸1024x745
7死2伤,清理污水调节池时发生中毒事故,附原因分析,预防举措,有限空间
图片尺寸578x373
uasb的工艺设计
图片尺寸1366x1871