路线分析图

路线图制作
图片尺寸3000x2122
交通及游览路线分析图
图片尺寸2000x1333
职业生涯路线分析过程图
图片尺寸566x470
路线分析图
图片尺寸500x353
流程图分析经典童话故事《丑小鸭》主角行动路线
图片尺寸2667x2000
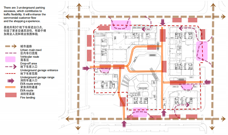
车行路线分析
图片尺寸742x440
我们分析了上百万个外卖小哥的送餐路线,发现了外卖江湖的4个流派
图片尺寸750x425
网站首页 海量文档 报告/分析 教育课题研究方法及技术路线图模板
图片尺寸792x1120
交通路线分析
图片尺寸3508x2480
【定向·比赛分析】2021年北京高校学生定向积分赛第二站路线分析
图片尺寸1080x726
比赛路线
图片尺寸2480x3507
路线分析
图片尺寸662x608
两次环校跑gpx路线分析
图片尺寸1080x1439
路线分析图
图片尺寸2000x1689
交通路线分析图
图片尺寸977x622
总路线图0923.jpg
图片尺寸960x818
路线分析
图片尺寸760x429
图4 可达性分析技术路线
图片尺寸583x554
方案三路线分析图
图片尺寸560x351
【传统企业电子商务实施路线图】本图从分析优化,战略规划,可行性研讨
图片尺寸658x1015