钢琴cad图

钢琴平立面图块
图片尺寸560x420![[分享]cad钢琴模块资料下载](https://imgs.wantubizhi.com/img/A1A61BAA66193547F3A6DD7D8EE527E94150762CF84E991783EE366416BDACD5F84D87488ABDB06D9266FD5BC139BB6A915CC31574AEA942723F1D92AF9CC48FE19596C52E20E0DCCBCBA8FAE9747C528AD0DEC39CA5E403F2A0C4A0079FF22F)
[分享]cad钢琴模块资料下载
图片尺寸760x570![[分享]cad钢琴模型资料下载](https://imgs.wantubizhi.com/img/735A5D1F980B52A636CC46F12F2D1A736C7C9CAACF3C7C632C5B9DBBDE44890732247F31D7D4EAB849117F13CBB10A43282A73189ACAD0D3FCD8EE6DB693506BFE2FB140D10B3A14C00030AC9535310757CA38CCA683DC5110982B577C2E8B95)
[分享]cad钢琴模型资料下载
图片尺寸366x338
室外健身cad图块资料下载-钢琴三维图块Ⅱ
图片尺寸560x420
钢琴archicad模型
图片尺寸430x329
2019硬装盘经典赏析之a22:精品cad图库丨按照类型分类丨施工图纸丨图
图片尺寸453x638
motorcad宝马i3驱动电机详解
图片尺寸761x418![[分享]cad钢琴模块资料下载](https://imgs.wantubizhi.com/img/A1A61BAA66193547F3A6DD7D8EE527E90D09A30392311E5096061F20B23653EB942F80449907C7AA53EA928F1FBED871FE677AA8D5E1D70002328D40FD534DD730BEA79E00B935560FF140B6379E3BF427AA9D257D8CC5BE793ACC1DF64DA111)
[分享]cad钢琴模块资料下载
图片尺寸640x480
金阳第一农场别墅全新升级舒适性更高人生当有此墅
图片尺寸698x449
cad图用什么软件打开?这几款软件集编辑阅读一体!_图纸_功能_用户
图片尺寸708x500
最终iphone16procad图曝光机身设计有5大亮点变化
图片尺寸568x323
家具品牌:法国ligne-roset,北欧风情,harbor house,斯坦威三角钢琴
图片尺寸1080x598![合肥欧式装修资料下载-[合肥]奢华大气欧式高档别墅室内设计cad施工图](https://imgs.wantubizhi.com/img/A1A61BAA66193547F3A6DD7D8EE527E91B948CF337CDA74E7E6182872F87CCE7E0A12CB297A5B4AFB9A1339FCF65FCEEC5D3C8BBC8ECAD4B930BB6D2F9A6D09D00CFB22D18135C670F10D86DC1DFD96A8B6EDF5AD2401580B8CDDA86CD7FAD83)
合肥欧式装修资料下载-[合肥]奢华大气欧式高档别墅室内设计cad施工图
图片尺寸600x800
玻璃王冠荷兰naturalis生物多样性中心博物馆
图片尺寸1080x669
赏案例 | 230㎡现代平层设计,一个让人心神向往的居所
图片尺寸500x353
学她做个多功能房吧!_钢琴
图片尺寸712x504
cad图用什么软件打开?这几款软件集编辑阅读一体!_图纸_功能_用户
图片尺寸600x300
8.需要放置一台钢琴7.儿子喜欢高低床6.
图片尺寸1080x820
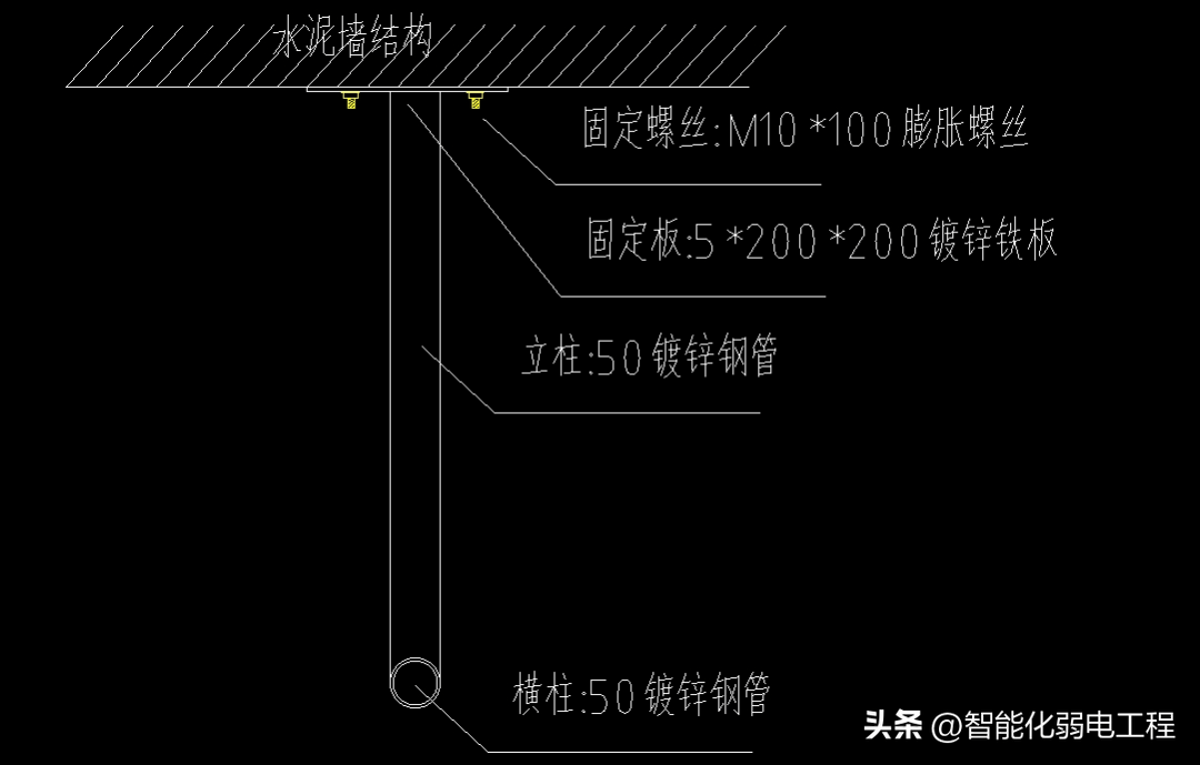
弱电工程会议室舞台灯光系统安装大样图cad格式
图片尺寸1080x689
零基础学cad应该从哪里入手
图片尺寸640x513