钻头cad图纸

木工钻头设计结构图纸及应用技术
图片尺寸584x370
木工麻花钻的检验项目,技术要求
图片尺寸636x361
钻头刃磨方法总结大全收藏慢慢看看
图片尺寸640x480
木工麻花钻的检验项目,技术要求
图片尺寸624x527
供应赛万特u钻快速钻浅孔钻喷水钻暴力钻内冷钻扩孔钻zd04140xp25
图片尺寸774x346
国磨质检检测新能力地质钻探用钻头
图片尺寸523x277
旋挖钻机钻头埋钻处理
图片尺寸400x286
旋挖钻机钻头埋钻处理
图片尺寸400x246
钻头_mm_表面
图片尺寸501x363
海澳德含钴倒角刀90度直柄单刃三刃倒角钻头不锈钢扩孔单边45度锪钻
图片尺寸990x1178
材料(如钛合金)时,由于弹性恢复大,使得孔壁与钻头刃带的摩擦力矩增加
图片尺寸387x737
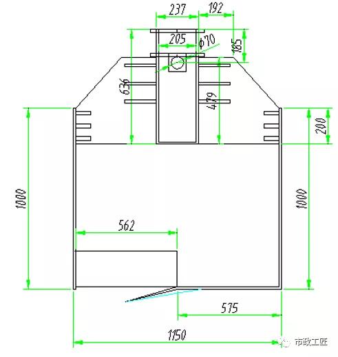
部成立了汉江特大桥桩基施工专班及qc攻关小组,设计制作"磨盘钻"钻头
图片尺寸716x477
用solidworks画一个简单的钻头_手机搜狐网
图片尺寸640x819
用solidworks画一个简单的钻头
图片尺寸634x776
图2 旋挖钻清孔器设计图清孔器根据旋挖钻机钻头装土原理进行改进设计
图片尺寸491x518
机夹木工铣刀特点及普通刀片装配式木工铣刀结构介绍
图片尺寸954x388
关于钻孔机的校准和保养_钻头_训练_视觉
图片尺寸640x360
用钻头(见木工刀具)在工件上加工通孔或盲孔的木工机床.
图片尺寸220x146
【机械加工】内孔表面加工常用方法大汇总,又要收藏了_孔径_钻头_直径
图片尺寸589x236
用solidworks画一个简单的钻头
图片尺寸687x1053