隐形地漏安装示意图

简二排二次排水下沉式暗地漏酒店旅馆卫生间返潮干浆层防水防漏50mm长
图片尺寸790x1041
三款常用暗藏地漏节点.
图片尺寸1303x1738
广东高档304不锈钢长方形暗装隐藏式淋浴房大排量防臭防虫地漏,批发
图片尺寸750x805
黑色304不锈钢隐形地漏防臭防堵方形卫生间下水道加厚地漏芯哑光黑
图片尺寸750x826
回填施工的二次排水(隐形地漏)结构示意图.
图片尺寸640x345
线性排水,隐藏地漏,工艺做法,节点详图.#图文伙伴计划 隐藏 - 抖音
图片尺寸1440x1920
返必克淋浴地漏隐形地漏 黑色防返水高端镶砖全铜防臭磁悬浮卫生间
图片尺寸990x1267
隐形地漏二次排水示意图
图片尺寸640x316
伊唯伊 隐形地漏304不锈钢 防臭地漏防堵芯长方形淋浴房大地漏-tmall.
图片尺寸658x542
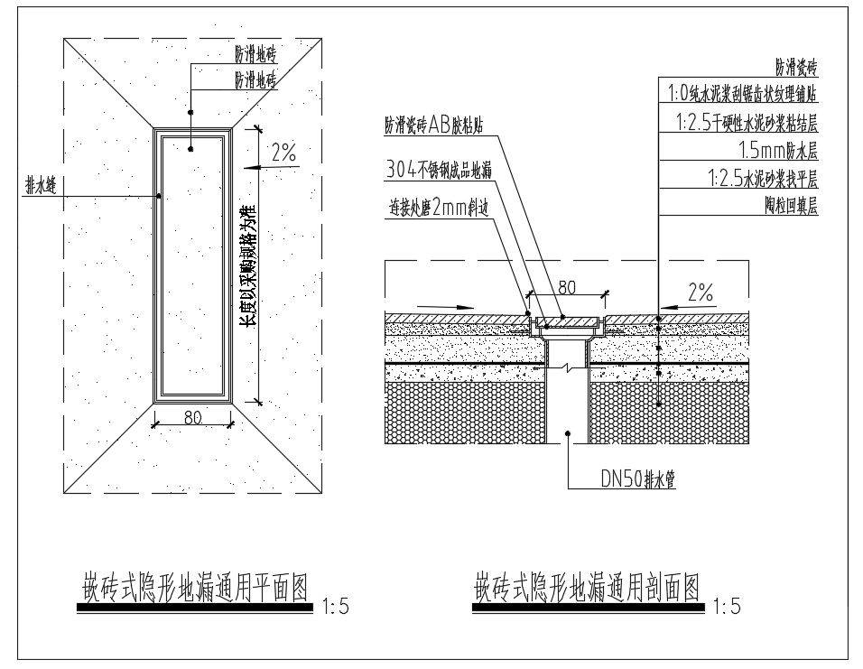
淋浴间隐形地漏通用节点详图
图片尺寸564x564
304不锈钢隐形地漏防臭长方形加厚地漏阳台淋浴房大地漏1020隐形地漏
图片尺寸790x529
地漏看似不起眼,但也不是想买就随便买一个,选地漏也是有方法的
图片尺寸790x506
隐形地漏每一眼都是治愈细节感拉满
图片尺寸1080x1432
快鲨暗漏二次排水暗地漏同层排水积水器50pvc简二排下沉式卫生间
图片尺寸750x1000
全铜隐形地漏防臭卫生间淋浴房阳台可镶砖隐藏式地漏方形黑色加厚定制
图片尺寸750x465
地漏要不要装存水弯,你知道吗?
图片尺寸555x410
家里地漏容易堵又返臭,老婆塞个乳胶套轻松解决,师傅夸赞真聪明
图片尺寸415x243
隐形地漏(成品)节点图
图片尺寸1800x1154
石材饰面隐形式地漏更美观更实用
图片尺寸956x741
科勒全铜黑色拉丝金隐形地漏卫生间快排防臭防虫阳台淋浴房洗衣机
图片尺寸750x1053