靠结构

一种靠结构自重的防掉落机构-爱企查
图片尺寸800x564
一种可调节宽度和高度的头靠结构制造技术
图片尺寸963x1000
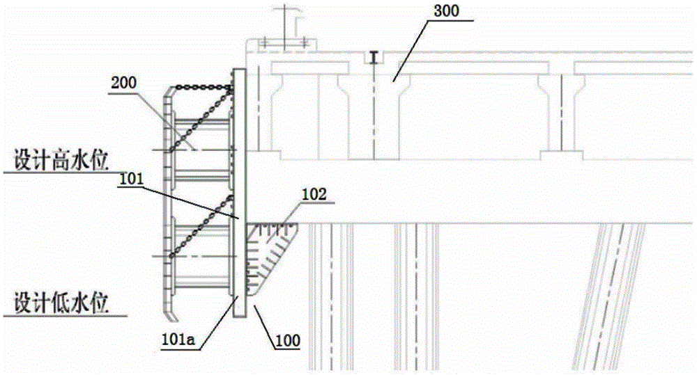
可更换的钢结构靠船构件
图片尺寸1000x539
6 物质的分离(第二课时) 课件(浙教版八年级上)ppt
图片尺寸1080x810
钢结构厂房靠搭建出来的钢结构厂房
图片尺寸1080x1443
人们对出行舒适性提出了更高的要求,目前生产的高铁座椅没有腿靠结构
图片尺寸412x443
全玻璃幕墙靠结构水平节点
图片尺寸504x434
沙发专利申请需要申请外观设计专利,而如果沙发的结构上进行改进的话
图片尺寸500x311
一种高桩承台基础靠船构件连接结构
图片尺寸809x1379
这得益于雄性特殊的结构,首先它可以向后旋转大于90度的角度,其次是狗
图片尺寸1000x750
特殊结构的桌子,桌面悬空,中间仅靠铁链制衡_腾讯视频
图片尺寸1280x720
转k7型转向架课件1ppt
图片尺寸1080x810
一种透镜承靠结构和镜头-爱企查
图片尺寸612x800
所有分类 工程科技 机械/仪表 容器支座及其选用1ppt 鞍式支座的结构
图片尺寸1080x810
旋转小靠背内部结构
图片尺寸652x273
cn109334695a_一种列车用靠坐联动结构在审
图片尺寸1500x1140
驳岸突出,以立柱架于水上,建筑多为单层,平面或方形或长方形,结构轻巧
图片尺寸600x450
机械基础 教学最好的ppt 第四讲_常用机构(1) (公开课专用)
图片尺寸1090x817
最典型的就是石墨的片状结构,层间就是靠分子间作用力连接的,准确来讲
图片尺寸489x434
电动平衡车扶靠结构-爱企查
图片尺寸260x231