高压pt手车柜原理图

pt手车原理接线图
图片尺寸906x653
esd-124n 高压柜综合保护原理图(手车)
图片尺寸1311x927
kyn28a-12中pt柜1yma与1ymc之间的电压是多少v?图纸bk
图片尺寸735x709
10kvpt柜原理接线图pdf
图片尺寸860x1216
一种pt柜接地手车闭锁电路制造技术
图片尺寸1000x591
进线隔离pt柜二次原理图
图片尺寸362x345
高压柜图纸
图片尺寸512x236
高压pt手车高压中置柜pt隔离手车10kv电压互感器计量避雷器手车
图片尺寸800x1045
5高压柜pt手车如何安装三pt和三只避雷器
图片尺寸1310x775
端子出线图等图纸 相关专题:电容器柜原理图接线图 高压pt柜原理图
图片尺寸700x492
高压柜二次原理图
图片尺寸587x413
pt柜一次二次原理接线图
图片尺寸616x426
pt柜原理图
图片尺寸950x597
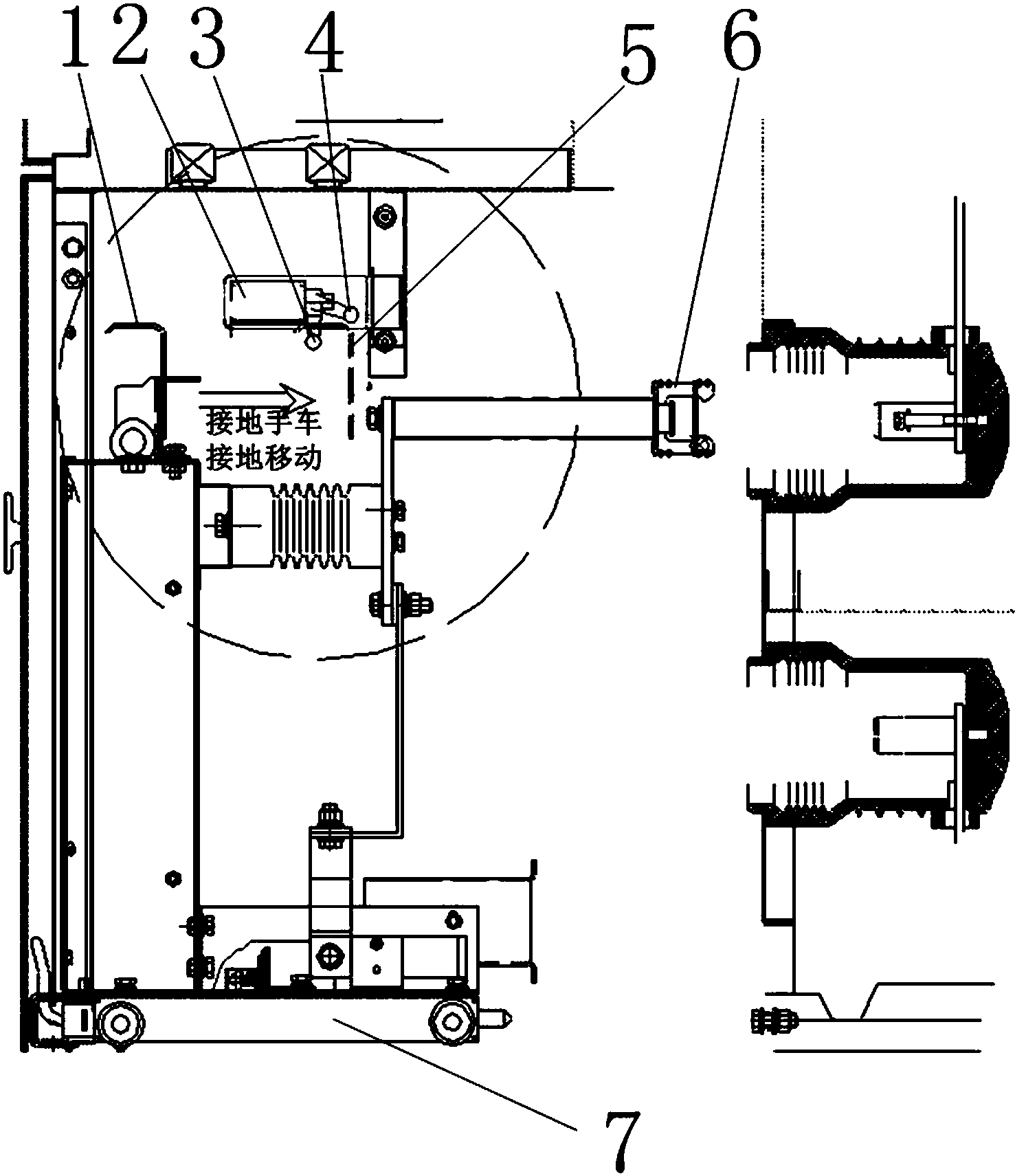
一种用于pt柜的接地手车非工位联锁机构
图片尺寸1477x1711
请教10kv高压pt柜电压互感器二次回路与手车触点闭锁问题
图片尺寸683x527
变电站用pt柜原理图
图片尺寸288x227
pt柜二次原理图变压器柜二次原理图高压配电一次系统图计量柜二次原理
图片尺寸651x457
pt手车图纸
图片尺寸400x260
3母线设备柜3处,避雷器和带电显示器是否安装在pt手车里?
图片尺寸746x411
10kv 计量手车 隔离手车 熔断器手车 pt手车 避雷器手车 630a 1250a
图片尺寸871x568