12j926h2

请问12j926无障碍设计图集f8中的楼梯双层扶手和靠墙双层扶手套哪些
图片尺寸1013x680
公铁两用跨江大桥增设垂直升降梯施工图2019
图片尺寸760x533
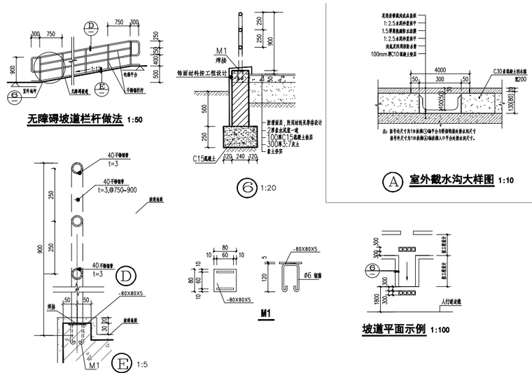
这个无障碍坡道及扶手土建怎么构建?预算又该怎么做
图片尺寸1366x736
建筑无障碍设计的目录
图片尺寸1500x1108
楼梯栏杆施工图下载
图片尺寸1600x1130
天津12j12无障碍设施图集 pdf高清电子版
图片尺寸586x423
12j926无障碍设计图集
图片尺寸1200x854
无障碍标准丨12j926 无障碍设计(图集)(3)
图片尺寸1080x767
几款楼梯与栏杆详细施工图
图片尺寸501x563
有图集12j926的 帮忙发下万分感谢361138307qq邮箱!在线等!
图片尺寸1600x1190
评论| 0 0 2015-06-28 12:26 刘家长江9|十五级最快回答 03j926
图片尺寸2964x2118
河南残疾人专用无障碍扶手
图片尺寸1080x1440
12j926无障碍设计图集 39
图片尺寸1016x738
天津12j12无障碍设施图集 pdf高清电子版
图片尺寸585x422
图集
图片尺寸403x235
1/ 12
图片尺寸728x422
03j926建筑无障碍设计,25页如下,希望能点一下采纳
图片尺寸600x428
无障碍标准丨12j926 无障碍设计(图集)(3)
图片尺寸1080x771
12j926无障碍设计图集清晰版pdf格式免费版绿色破解版
图片尺寸609x441
答:无障碍栏杆做法选自图集《无障碍设计图集》(12j926)第h1页节点;无
图片尺寸373x523