15米长8米宽建房图纸

农村面宽8米,进深15米,东西不能开窗,如何设计?-惠修网
图片尺寸640x1133
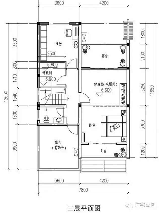
农村自建三层别墅,面宽15米,8室2厅,还有储藏室和书房,太棒了
图片尺寸640x642
新农村8米x15米 新中式自建房 漂亮大气实用含图纸
图片尺寸640x1043
头条问答 - 建房的地方在路边,8米宽15米深怎样设计?(12个回答)
图片尺寸640x882
长15m宽8米房屋咋设计
图片尺寸319x485
8x15米自建房设计图纸布局合理带天井设计
图片尺寸700x1084
8x15米的前后采光,设计成三室两厅一厨一卫要怎么设计?
图片尺寸459x690
8x15米的前后采光,设计成三室两厅一厨一卫要怎么设计?
图片尺寸459x687
8x15米的前后采光,设计成三室两厅一厨一卫要怎么设计?
图片尺寸423x686
8x15米自建房设计图纸布局合理带天井设计
图片尺寸700x1173
头条问答 - 8米乘15米长宽的二层怎么样设计3房一厅一厨一卫呢?
图片尺寸640x968
这3套图纸,不管是外观造型还是室内布局,都可以说是无可挑剔,你更喜欢
图片尺寸641x539
15米长8米宽建房图纸
图片尺寸640x793
建房的地方在路边,8米宽15米深怎样设计?
图片尺寸640x854
长15米宽8米的农村自建房图楼梯在左后!跪求
图片尺寸731x472
请与我们联系,电话:18610295382 ;微信:housepark9 刘工自建房保温
图片尺寸800x1243
15x8米农村别墅设计巧妙成为青山绿水中的一抹亮色
图片尺寸746x507
头条问答 - 8米乘15米长宽的二层怎么样设计3房一厅一厨一卫呢?
图片尺寸640x817
屋顶平面图:微信公众号:住宅公园,免费300套自建房别墅图纸下载,各种
图片尺寸640x894
新农村8米x15米新中式自建房漂亮大气实用含图纸
图片尺寸640x844