15zj521图集

15zj521吊顶和轻隔断_2016高清图集
图片尺寸1199x882
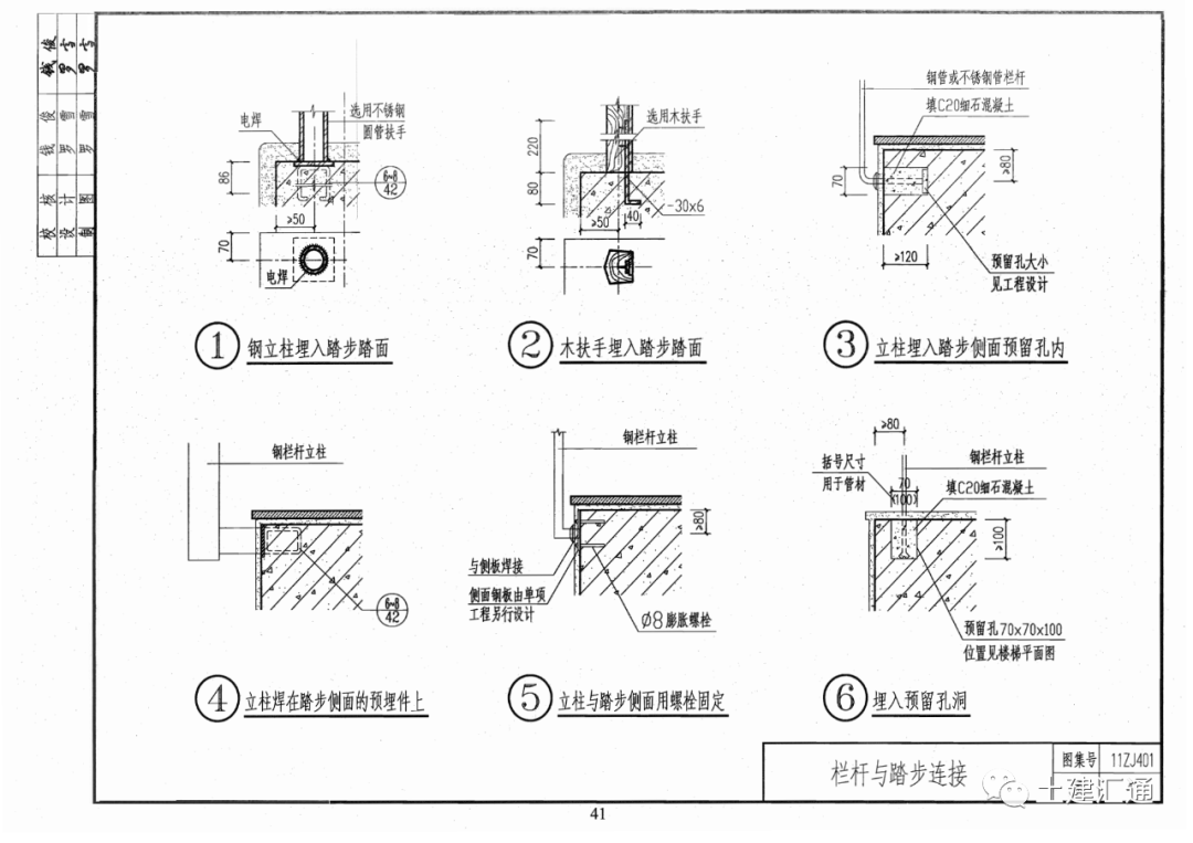
第十一期:中南标准建筑图集4(11zj401 - 中南标15zj521 - 实验室设备
图片尺寸1080x763
【高清】15zj521吊顶和轻隔断
图片尺寸1200x886
15zj502民用建筑隔声与吸声构造 建筑图集 吊顶与轻隔断15zj521 中南
图片尺寸310x280
第十一期:中南标准建筑图集4(11zj401 - 中南标15zj521 - 实验室设备
图片尺寸1080x763
建筑图集 8(2015)中南标(15zj502,15zj512,15zj521) 中国建材工业出版
图片尺寸800x800
0成交200千克余姚市斯威特塑化有限公司she521shezj|8年 |主营产品
图片尺寸750x750
796_521
图片尺寸796x521
分对象活动来啦 !第二轮即将开始94 墙墙 - 抖音
图片尺寸1080x1108
com 宽521x352高 img65.afzhan.com 宽1280x960高 digi.
图片尺寸353x395
98zj521 吊顶,轻隔断免费下载 - 地方图集 - 土木工程网
图片尺寸564x447
com小媳妇锋记通过花瓣iphone客户端采集于2018-02-27 11:00:521喜欢
图片尺寸658x435
与吸声构造/卫生间和厨房15zj512/吊顶与轻隔断15zj521/正版建筑图集
图片尺寸958x866
600_521
图片尺寸600x521
521_391
图片尺寸521x391
396_521竖版 竖屏
图片尺寸396x521![521不忘初心i love you zj[心]](https://imgs.wantubizhi.com/img/A1A61BAA66193547F3A6DD7D8EE527E98728A689CB9F5CB4F36EA7DFCDF321A5DE7105464833E33D0137A68A849CF7D63F0C9FAA68D1874A5F54C1D8D36A9529667B90E17272C64B31CFDDE32DEB37A71E046849A3893208A2C8CED154892ECB)
521不忘初心i love you zj[心]
图片尺寸640x641
建筑剖面图怎么看
图片尺寸640x341
521_402
图片尺寸521x402
钢筋混凝土梁式桥病害图集2
图片尺寸768x521