17j925-1图集2-61

17j925-1 压型金属板建筑构造-规范图集|经验交流-金瓦刀
图片尺寸1600x1131
17j925-1 压型金属板建筑构造3-3
图片尺寸880x880
17j925-1 压型金属板建筑构造2-3-图三
图片尺寸880x880
17j925-1压型金属板建筑构造,17j925-1压型金属板建筑构造,欢迎大家来
图片尺寸794x1123
17j9251压型金属板建筑构造
图片尺寸1600x1131
17j925-1设计参数d3反射型防水透汽膜 压型板金属屋面和外墙用
图片尺寸1237x807
17j925-1设计参数d3反射型防水透汽膜 压型板金属屋面和外墙用
图片尺寸1239x806
17j925-1 压型金属板建筑构造3-3
图片尺寸880x880
17j925-1 压型金属板建筑构造2-3-图二
图片尺寸880x880
17j6102特种门窗二
图片尺寸1601x1132
992_698
图片尺寸992x698
图集--17j925-1 .《压型金属板建筑构造》,有需要的 - 抖音
图片尺寸615x435
图集介绍了压型金属板围护系统的系统构造,防(排)水,抗风揭,防雷,防火
图片尺寸1080x763
外墙外保温图集
图片尺寸1383x1017
17j610-1:特种门窗(一)
图片尺寸1600x1131
06j925-2:压型钢板,夹芯板屋面及墙体建筑构造(二)
图片尺寸1514x1057
07cj15波形沥青瓦波形沥青防水板建筑构造参考图集
图片尺寸880x880
17j9251压型金属板建筑构造33
图片尺寸880x880
17j925-1压型钢板图集下载-17j925-1压型钢板图集pdf高清版-兔叽下载
图片尺寸720x482
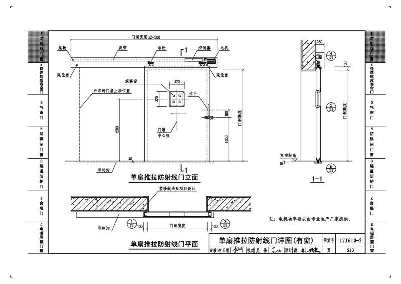
17j610-2特种门窗(二)防射线门窗 快速软质卷帘门 气密门 闸门窗 隧道
图片尺寸800x566