50平方单身公寓户型图

实现财务自由的姐姐,将50㎡单身公寓改造成全屋智能温馨家
图片尺寸640x333
50平米小户型单身公寓装修设计平面图
图片尺寸794x977
50平米温馨公寓恋家现代简约设计图片赏析
图片尺寸901x1245
20万50平米混搭小户型/一房装修效果图,50平米的单身公寓装修案例效果
图片尺寸868x750
单身公寓
图片尺寸1080x897
50平米简约风格单身公寓
图片尺寸1200x938
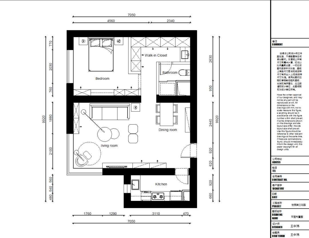
一居室50平米小户型平面图参考
图片尺寸250x341
50平方米的单身公寓精致的现代北欧风格温馨又时尚
图片尺寸1080x833
周亮亮设计作品现代50平米单身公寓设计2661630
图片尺寸1100x672
小伙在苏州定居,买了一套50平单身公寓,装修成这样对象也不缺了
图片尺寸640x702
一室两厅平面设计图 单身公寓户型图
图片尺寸1927x1655
【小而精致】50平方米小单身公寓
图片尺寸600x424
小空间|新古典主义:一套富有装饰性的50平单身公寓设计
图片尺寸1080x1527
求大神帮忙设计一张公寓的设计图啊!
图片尺寸2448x3264
《单身公寓里的小奢华》厦门万益广场50平米小奢华家居设计
图片尺寸500x505
新闻公众号 单身公寓装修设计案例 > 正文 户型图: 客厅: 在面对小
图片尺寸640x727
装修50㎡的单身公寓现代简约风格 户型图
图片尺寸617x562
50㎡的单身公寓,极尽简洁兼具功能与舒适
图片尺寸1000x1000
50㎡单身公寓,小户型一样时尚又温馨!
图片尺寸690x658
这是一套天津小户型单身公寓装修效果图,面积只有50来个平方,虽然
图片尺寸500x287