8米x15米长房屋设计图

头条问答 - 8米乘15米长宽的二层怎么样设计3房一厅一厨一卫呢?
图片尺寸640x837
农村面宽8米,进深15米,东西不能开窗,如何设计?-惠修网
图片尺寸640x1154
头条问答 - 8米乘15米长宽的二层怎么样设计3房一厅一厨一卫呢?
图片尺寸640x968
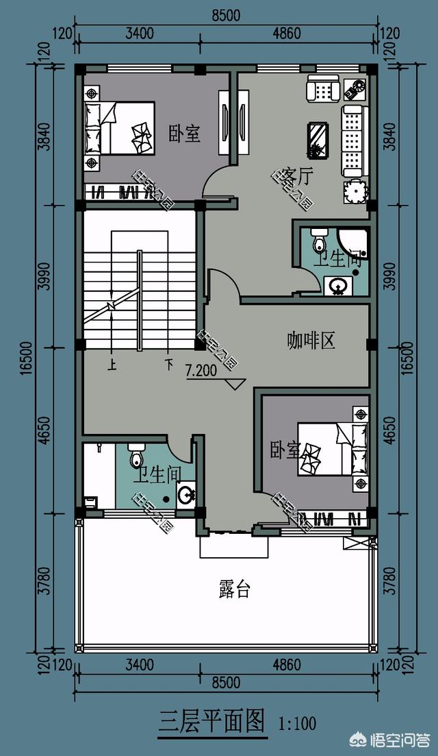
新农村8米x15米 新中式自建房 漂亮大气实用含图纸
图片尺寸640x1043
农村三合院(农村三合院自建房设计图)-好运到装修网
图片尺寸1500x2096
农村面宽8米,进深15米,东西不能开窗,如何设计?-惠修网
图片尺寸640x1133
8x15米自建房设计图纸布局合理带天井设计
图片尺寸700x1094
农村面宽8米,进深15米,东西不能开窗,如何设计?-惠修网
图片尺寸640x1179
农村建别墅,面宽15米,进深8米怎么设计?
图片尺寸641x530
头条问答 - 8米乘15米长宽的二层怎么样设计3房一厅一厨一卫呢?
图片尺寸640x873
8米,进深15米,虽然面宽有限制,但是在设计师的笔下,整个建筑非常的
图片尺寸531x824
建房的地方在路边,8米宽15米深怎样设计?
图片尺寸509x650
农村自建房设计图效果图8米宽多少(农村8米宽的自建房图)
图片尺寸1127x1000
农村自建房设计图效果图8米宽多少(农村8米宽的自建房图)
图片尺寸1037x1000
农村面宽8米,进深15米,东西不能开窗,如何设计?-惠修网
图片尺寸640x1103
面宽仅8米的农村房子怎么设计这款欧式别墅图纸28万就能建
图片尺寸640x767
农村自建房8米x15米左无窗这个布局真挺好含效果图平面图
图片尺寸640x357
面宽8米狭长形地基怎么建房7款设计案例村里建一栋人人跑来效仿
图片尺寸575x904
几代同堂这样建房,老人孩子相互不打扰,12x15米乡村小洋楼(全图 预算
图片尺寸1280x1651
第三栋:8.5米宽这款别墅设计深度为10.6米,占地面积93.
图片尺寸640x900