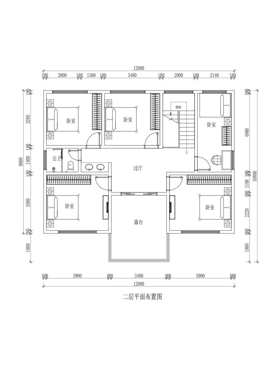
9米宽12米长房屋设计图

农村自建房设计二层,面宽12米,进深9米 农村自建房设计二层,面宽12米
图片尺寸960x1280
农村自建房设计二层,面宽12米,进深9米 农村自建房设计二层,面宽12米
图片尺寸960x1280
头条问答 - 自建房长12米宽9米左右,该怎么设计?(21个回答)
图片尺寸640x955
农村宅基地宽9米深12米,共3层,该怎么设计比较好?
图片尺寸1500x2281
农村宅基地宽9米深12米,共3层,该怎么设计比较好?
图片尺寸1500x2231
岳阳长9米宽12米农村自建房设计图-岳阳自建房施工队-乡村别墅公司
图片尺寸800x765
占地面积较小的宅基地,需要充分利用建筑的空间,合理紧凑规整的设计
图片尺寸640x914
头条问答 - 面宽9米进深12米,该怎样设计?(7个回答)
图片尺寸640x961
农村自建别墅宽9米深12米如何设计呢
图片尺寸640x711
农村宅基地宽9米深12米,共3层,该怎么设计比较好?
图片尺寸1500x2209
农村自建别墅宽9米深12米如何设计呢
图片尺寸640x771
农村自建别墅宽9米深12米如何设计呢
图片尺寸640x919
9米宽建别墅,施工队推荐这3款设计图,大部分人都会选择第一栋
图片尺寸1000x1424
农村宅基地宽9米深12米,共3层,该怎么设计比较好?
图片尺寸800x1443
农村宅基地宽9米深12米,共3层,该怎么设计比较好?
图片尺寸800x1412
9米宽建别墅,施工队推荐这3款设计图,大部分人都会选择第一栋
图片尺寸1000x1217
农村自建别墅宽9米深12米如何设计呢
图片尺寸640x870
5款小户型三层别墅9米12米第1款设计就非常棒
图片尺寸750x1211
自建房长12米宽9米左右,该怎么设计?
图片尺寸640x555
912米小面宽欧式别墅外观时尚大气布局简约实用
图片尺寸2590x3510