GIS 配电装置

gis设备在变电站运行中的特点都有哪些?_检测_带电_小型化
图片尺寸4032x3024
认识变电站中的gis,ais,hgis三种配电装置
图片尺寸2448x3264
「原创」新能源发电项目gis设备介绍「单母线gis,线变组,hgis」
图片尺寸640x853
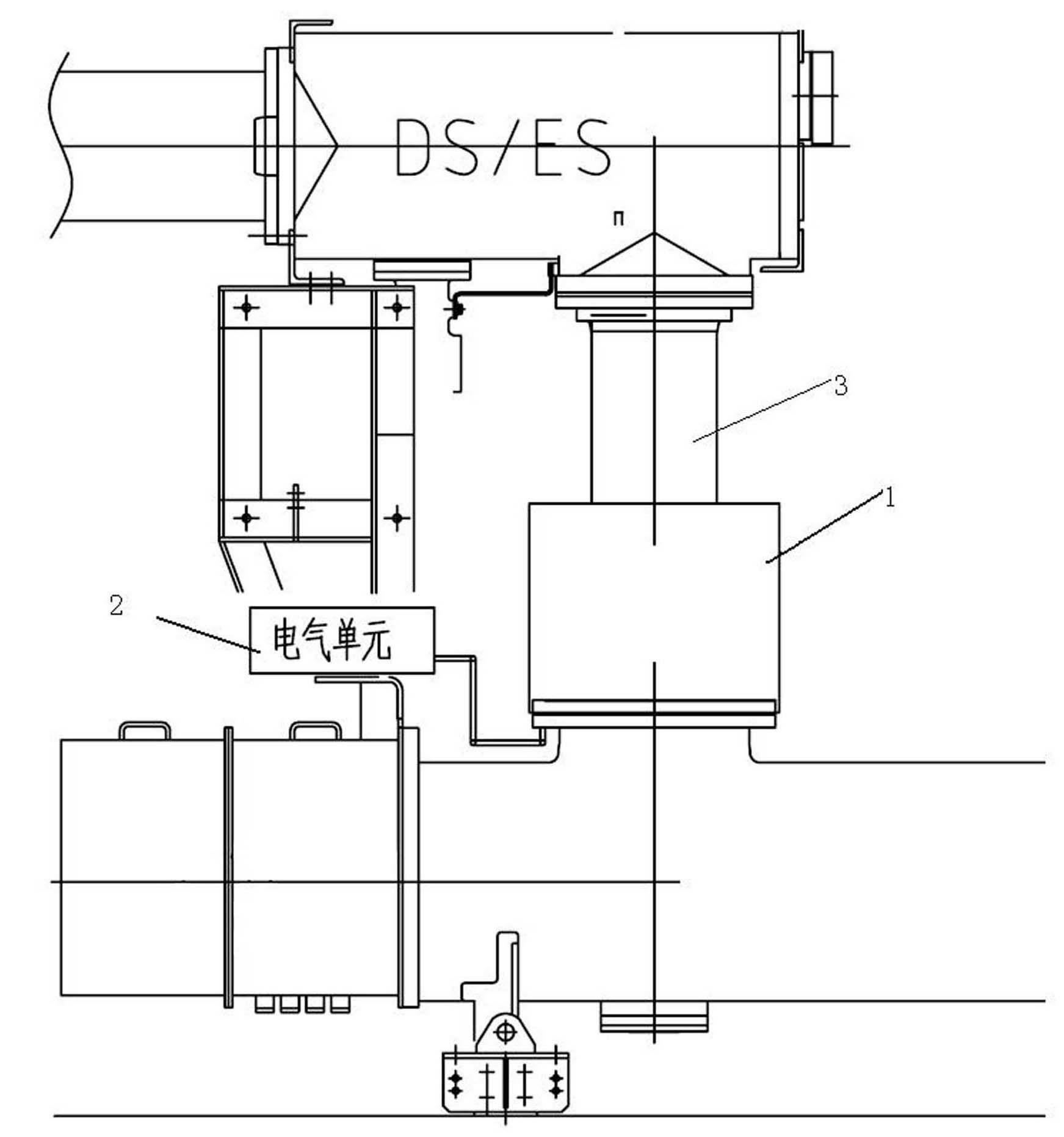
220kvgis配电装置
图片尺寸1743x1863
认识变电站中的gis,ais,hgis三种配电装置
图片尺寸1080x1920
简称c-gis)是35kv三相交流50hz单母线及单母线分段系统的成套配电装置
图片尺寸640x853
平高集团自主研发制造的国内首台126千伏无氟环保gis投运
图片尺寸1269x952
组合电器gis(gesg 1240-nhs)
图片尺寸750x508
35kv gis开关柜成功带电
图片尺寸550x412
世界首台550千伏高速开断gis成功并网运行
图片尺寸640x484
「原创」新能源发电项目gis设备介绍「单母线gis,线变组,hgis」
图片尺寸640x480
情况下,在 a target="_blank" href="/item/继电保护装置/7279542"
图片尺寸960x720
富春江电厂开关站gis改造工程首期项目投产纪实
图片尺寸640x398
「原创」新能源发电项目gis设备介绍「单母线gis,线变组,hgis」
图片尺寸640x853
gis设备在变电站运行中的特点都有哪些?_检测_带电_小型化
图片尺寸4032x3024
gis配电装置接地点较多,一般设置接地母线,将gis的接地线与接地母线
图片尺寸850x850
案例分享vbl11智能振动传感器在gis变电站设备中的应用
图片尺寸1276x1702
郫都首座!220千伏全室内gis变电站成功投运
图片尺寸640x372
高压变电站gis综合在线监测系统
图片尺寸1133x520
gis设备简介
图片尺寸379x283