alc板图集规范

蒸压加气混凝土板(alc板)施工图集 - 轻质隔墙板_alc墙板_alc板_蒸压
图片尺寸1183x801
苗启松钢结构住宅alc外墙板围护体系研究与应用
图片尺寸1280x904
建筑结构丨北京院苗启松:钢结构住宅alc外墙板围护体系研究与应用(内
图片尺寸1280x904
关于alc板安装工艺
图片尺寸813x900
alc板图纸,有没有人要做的 - 抖音
图片尺寸720x1600
干货对alc砂加气隔墙板超高部位施工技术研究
图片尺寸514x614
轻钢笔记美标alc承重墙节点详图
图片尺寸1080x1398
规范和图集关于构造柱的布置,几乎都集中在砌块墙体部分,而在alc板材
图片尺寸1080x765
北京丰台aac条板厂家直销 加气条板直销 alc蒸压加气条板安装
图片尺寸750x3462
轻钢笔记美标alc承重墙节点详图
图片尺寸1080x1416
观点丨苗启松钢结构住宅alc外墙板围护体系研究与应用
图片尺寸1080x763
alc隔墙板安装施工技术介绍-行业新闻-苏州alc墙板-苏州alc楼板-苏州
图片尺寸982x1000
alc条板的连接 alc条板的施工要点 1.施工前准备
图片尺寸1080x1079
苗启松钢结构住宅alc外墙板围护体系研究与应用
图片尺寸1280x904
yx65-430铝镁锰金属屋面板不知道什么标题好了_供应产品-慈溪圣爱医院
图片尺寸800x717
干货alc轻质隔墙板施工技术
图片尺寸497x326
(3)研发了alc条板与砌块墙连接位置的新型节点.
图片尺寸623x546
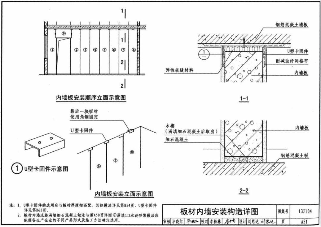
三人回到项目部办公室,小徐好一顿找,总算在13j104图集《蒸压加气
图片尺寸1000x709
建议方案二:气密层 alc内嵌墙板 外保温
图片尺寸672x582
alc板安装施工技术
图片尺寸571x442