alc隔墙板安装图解

苗启松钢结构住宅alc外墙板围护体系研究与应用
图片尺寸1280x904
干货alc轻质隔墙板施工技术
图片尺寸497x326
alc板安装流程.png
图片尺寸760x447
干货对alc砂加气隔墙板超高部位施工技术研究
图片尺寸514x614
alc板安装 - 抖音
图片尺寸1080x1440
按评分细则,内隔墙非砌筑比例需≥50%,采取alc条板墙与局部砌块墙相
图片尺寸640x333
alc隔墙板安装施工技术介绍-行业新闻-苏州alc墙板-苏州alc楼板-苏州
图片尺寸541x389
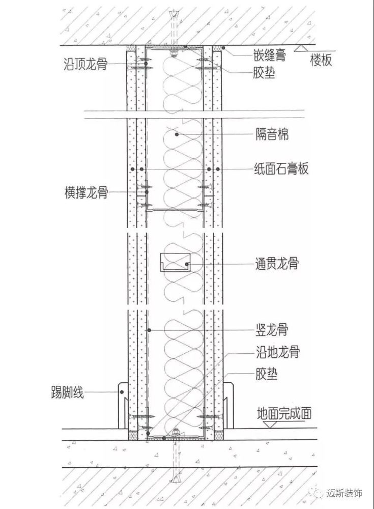
做轻钢龙骨石膏板隔断的整个工序?
图片尺寸1333x938
alc轻质隔墙板如何安装?工艺详解!
图片尺寸334x234
alc隔墙板安装施工技术介绍-行业新闻-苏州alc墙板-苏州alc楼板-苏州
图片尺寸982x1000
集成墙板安装图示
图片尺寸697x427
1 alc隔墙板施工方案
图片尺寸499x312
厂家供应 冰火板及铝合金配件组合
图片尺寸790x1797
专业生产集成墙板 优质pvc护墙板 纳米集成墙饰系统 竹木.
图片尺寸1563x3141
轻钢笔记美标alc承重墙节点详图
图片尺寸1080x1398
硅酸钙板隔墙安装图解
图片尺寸640x558
建筑结构丨北京院苗启松:钢结构住宅alc外墙板围护体系研究与应用(内
图片尺寸1280x904
快装板安装方法
图片尺寸794x1774
你们用过施工工期超短的轻质隔墙板吗?说说它的施工方法(多图)
图片尺寸925x579
mlles3大非典型室内隔墙设计与应用都在这了
图片尺寸735x1000