cad动线图怎么画

动线图 02- 风格
图片尺寸1057x471
朴素与奢华结合的新中式风格案例
图片尺寸2208x2181
金恪建筑后疫情时代办公室动线设计才是重中之重
图片尺寸725x300
空间动线
图片尺寸640x480
三层别墅满足三代同堂,竟然还能这么奢华.
图片尺寸780x1065
融盛状元府都说好身材有马甲线那好户型必不可缺合理的住宅动线
图片尺寸533x516
改造方案室内家务动线图注:本案例装修参考图由设计师根据改造方案及
图片尺寸1271x1092
茶饮店这样设置"双动线",解决店铺80%的效率问题!_门店
图片尺寸954x715
合理规划家居动线让家好看又好住
图片尺寸640x423
交通动线图二层:交通动线图地下室:07收纳示意图一层:收纳示意图二层
图片尺寸631x1059
揭秘深圳福田香蜜湖中央区豪宅——深业中城全案户型解析
图片尺寸800x634
交通动线图三层:06收纳示意图三层:07平面尺寸图三层:今天的户型分享
图片尺寸858x1071
平面动线图客厅↑客厅-效果图-1↑客厅-效果图-2↑客厅-效果图-3
图片尺寸1024x733
一层人流动线图
图片尺寸640x248
老人养老的别墅要怎么做居然要考虑这么多
图片尺寸659x1057
二层人流动线图
图片尺寸640x291
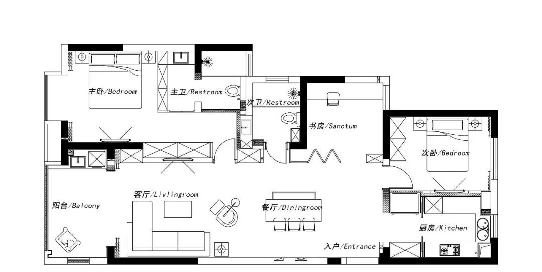
设计动线图尺寸标注图平面设计图平面布置图layout plan主卧从卫生间
图片尺寸1280x1122
限时赠送弱电各个系统安装大样图,cad格式_施工_对讲_监控
图片尺寸875x551
灰色系的灵动生活!工业设计师的130m净土
图片尺寸1080x543
建筑电气经典解析ppt电动汽车快充新建工程电气施工图cad
图片尺寸503x449