cad定位轴线的画法

快捷键tw智能墙剪快捷键ww画墙快捷键zxw简单轴线网有了它,你还怕画图
图片尺寸639x486
定位轴线
图片尺寸268x200
附加定位轴线的编号
图片尺寸640x285
3)对于详图上的轴线编号,若该详图同时适用多根定位轴线,则应同时注明
图片尺寸700x525
cad中的定位轴线的绘制方法步骤图
图片尺寸516x295
o偏移其他轴线; 输入ww回车; 对正方式切换到中心对齐; 再次输入ww画
图片尺寸568x711
cad中的定位轴线的绘制方法步骤图
图片尺寸497x294
门窗立面标注;层高标注,室内外高差标注;定位轴线,以此确认具体立面
图片尺寸692x583
3,定位轴线
图片尺寸553x738
cad中怎么快速的完成轴线的编号
图片尺寸528x391
天正建筑cad快速绘制一套完整施工图纸方法_平面图_装饰_位置
图片尺寸560x421
楼梯平面图的画法:根据楼梯间的开间,进深尺寸,画楼梯间定位轴线,墙身
图片尺寸877x357
对称线 定位轴线细虚线-图例线,不可见轮廓线中虚线-建筑构造图及
图片尺寸1682x938
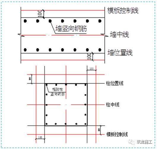
2,根据框架柱定位轴线和截面尺寸弹出双线(框架柱位置线和100mm控制线
图片尺寸529x504
使用绘制轴线画初始轴线,再用轴线偏移把其他轴线按尺寸画完.
图片尺寸414x306
门窗立面标注;层高标注,室内外高差标注;定位轴线,以此确认具体立面
图片尺寸698x794
1)建筑平面图的基本内容,如墙柱与定位轴线,房间布局与名称,门窗位置
图片尺寸640x454
5.建筑施工图的绘制1)画所有定位轴线,然后画出墙,柱轮廓线.
图片尺寸735x525
cad导图实战技巧一
图片尺寸718x400
神仙操作,cad一分钟能定位出n个圆?
图片尺寸779x587