cad怎么画瓷砖排版图

9种常见的瓷砖铺装设计大解析_排版
图片尺寸762x705
如何有效运用cad达到精细排版效果景观石材篇
图片尺寸527x535
想学石材cad?看完这篇可能就会了!
图片尺寸640x482
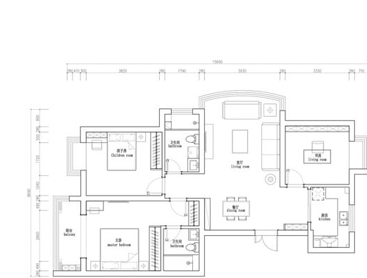
公摊30%实用面积仅有92平,自己装修买材料,装完后我觉得值|瓷砖|木工
图片尺寸660x443
1,按照瓷砖商家提供的铺贴排版图施工.
图片尺寸1080x1439
超值分享室内石材地面墙面常见节点cad图
图片尺寸932x792
②师傅手艺参差不齐一般来讲,通铺瓷砖要先排版,然后测量复尺切割瓷砖
图片尺寸850x629
有石cad排版下单软件让你的团队更专业更高效
图片尺寸639x350
cad剖切线怎么画?分享绘制方法!
图片尺寸843x551
超值分享室内石材地面墙面常见节点cad图
图片尺寸801x656
瓷砖|墙砖|砌墙|地砖|卫生间|小户型房子_网易订阅
图片尺寸580x773
流程】03-墙面砖施工【客厅地面砖完工照片展示】3,预排版按照排版图
图片尺寸724x464
如何有效运用cad达到精细排版效果景观石材篇
图片尺寸872x613
140平简美清爽,35万入住_空间_装饰_瓷砖
图片尺寸521x395
cad怎么画圆弧,小编教你快速画圆弧
图片尺寸666x397
有石cad排版——1:1真石排版有石cad 排版 下单软件热
图片尺寸1060x528
cad角度线怎么画?这三个软件非常好用!_绘图_进行_功能
图片尺寸730x525
cad圆弧怎么画?其实很简单_进行_命令_方法
图片尺寸1200x776
如何有效运用cad达到精细排版效果景观石材篇
图片尺寸857x613
墙砖铺贴顺序厨房墙砖排版深化05注:不同地区对于标高要求有所不同,请
图片尺寸744x406