cad画三角形怎么画

step2,得到满足长度条件的三角形.
图片尺寸850x700
如何快速在cad中画出等边三角形
图片尺寸473x425
cad如何测量三角形的角度
图片尺寸395x298
在cad中绘制规定边长封闭三角形简单方法
图片尺寸500x271
如何用cad画图测算三角形的边长
图片尺寸585x381
怎样使用cad绘制出三角形
图片尺寸500x345
怎样使用cad绘制出三角形
图片尺寸436x312
在cad中绘制规定边长封闭三角形简单方法
图片尺寸500x294
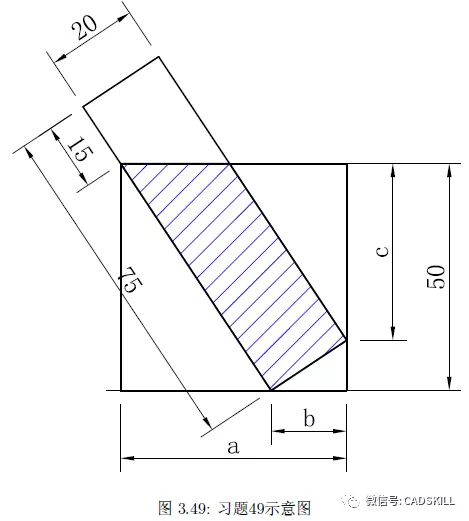
将条件分析一下,将条件转换为一个直角三角形的绘制,可以先画50的竖线
图片尺寸469x521
如何用cad画图测算三角形的边长
图片尺寸466x387
1,由三角形同一个边和勾股定理型得知,解出图中2x或者x的数值即可
图片尺寸1080x728
移动鼠标左键,画一个大小合适的三角形
图片尺寸826x624
cad巧用缩放参照绘图_三角形
图片尺寸795x589
如何快速在cad中画出等边三角形
图片尺寸640x384
缩放命令,将原本的三角形方法3倍;4.
图片尺寸1080x797
10,用形中较长的角焊缝(如焊接实腹钢梁的翼缘焊缝),可不用引出线标注
图片尺寸560x347
没有cad的年代,手稿就像打印般规整_中国建筑_古代_传承
图片尺寸640x802
cad练习题13画斜边三角形优
图片尺寸448x252
cad巧用缩放参照绘图_三角形
图片尺寸947x672
step6,三角形上侧端点为参考,对所有对象进行阵列操作.
图片尺寸750x750