cad石膏线平面图画法

精华图集 | 石材cad装饰线条图集,快收藏起来吧
图片尺寸1080x731
会员cad装饰线条图库合集
图片尺寸1080x440
石膏线大样图木质踢脚线大样图木线大样4,详图:在其它类图纸上直接拿
图片尺寸472x699
精华图集 | 石材cad装饰线条图集,快收藏起来吧
图片尺寸1080x527
金岸红堡平面设计图唐山龙轩装饰金岸红堡146 平米美式风格装修效果图
图片尺寸1125x794
精华图集 | 石材cad装饰线条图集,快收藏起来吧
图片尺寸998x757
125平新房花了16万装修,完工效果不喜欢都难,进门都说漂亮!
图片尺寸640x514
谁说石膏线过时了,看看这些精美的案例!
图片尺寸549x449
极简石膏线,美到飞起来!
图片尺寸1080x763
7套天花石膏线,地面,墙面踢脚线等节点图
图片尺寸760x537
04 欧式顶饰石膏03 踢脚线条02 腰线线条01 天花线条文件目录格式:cad
图片尺寸1080x464
欧式天花石膏线,腰线等装饰线条cad图块
图片尺寸760x570
天花石膏角线踢脚线cad门套线cad柜门线cad
图片尺寸640x454
王萌
图片尺寸563x468
极简石膏线,美到飞起来!
图片尺寸1080x572
第十届"中装杯"全国大学生环境设计大赛赛题之空间
图片尺寸1080x764
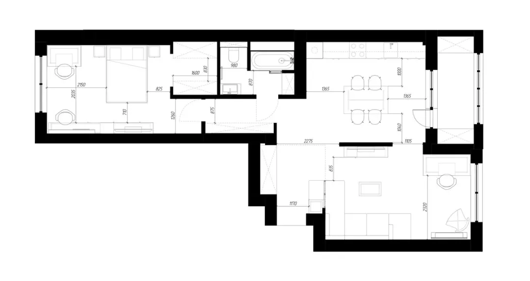
平面户型图小伙伴们一定见过很多的装修案例,大家觉得哪些算是好,哪些
图片尺寸660x334
欧式构件檐线成套cad图块下载
图片尺寸560x420
平面布置图|门厅 |一踏入家门,迎面而来的是精心设计的玄关区域
图片尺寸660x505
会员cad装饰线条图库合集
图片尺寸1080x559