dn65法兰图纸

法兰盘.pdf
图片尺寸800x1132
但不知道这个图纸中的数据哪个是指法兰的外径,哪个是指内径.
图片尺寸599x800
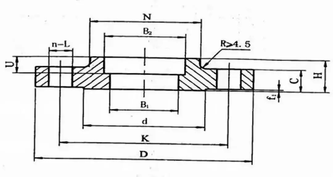
法兰图纸02
图片尺寸1095x765
平面,突面整体钢制法兰和平面,突面板式平焊钢制法兰有什么区别
图片尺寸1278x834
法兰.dwg
图片尺寸1200x800
法兰盘图纸
图片尺寸1188x918
国标法兰标准尺寸
图片尺寸920x1302
国标法兰标准尺寸
图片尺寸845x514
cad方法兰图纸
图片尺寸371x524
a2-法兰
图片尺寸830x654
3 dn500的法兰哪位可以提供下图纸或者具体数据?
图片尺寸653x566
求一种法兰的图纸
图片尺寸563x300
法兰机械加工工艺及夹具设计【车外圆】(cad图纸 solidworks三维模型
图片尺寸819x1158
法兰盘工艺及刀具量具夹具设计【含cad图纸 pdf图】
图片尺寸1200x800
带颈平焊法兰结构型式及尺寸 (摘自hg 20594-1997)
图片尺寸736x425
gb/t9124.1 2019钢制法兰pn系列带颈承插焊钢制管法兰型式与尺寸
图片尺寸640x647
方形圆形出气管转换座,本图纸是介绍的出气管转换座,是通过法兰连接的
图片尺寸494x566
法兰图纸
图片尺寸600x405
法兰知识集锦认全这12种法兰还真不容易
图片尺寸1080x573
法兰盘知识标准大全
图片尺寸519x348