t3b08a钢梯详图

哥哥姐姐们这个钢制楼梯怎么计算重量啊哪有教程
图片尺寸1116x800
钢梯
图片尺寸1333x803
各位大神,钢梯图集中t2c08这个楼梯的梯梁是-200*8的板还是c16的槽钢
图片尺寸1500x2000
钢梯套什么子目
图片尺寸551x574
某地常用钢结构楼梯节点构造详图cad图纸
图片尺寸610x744
钢梯 图集做法
图片尺寸1044x755
请问钢直梯wt1a-60怎么选用材料表啊
图片尺寸673x797
各位大佬,看看钢梯t2b08a-3.9,梯宽改700,在图集上怎么看
图片尺寸1560x2080
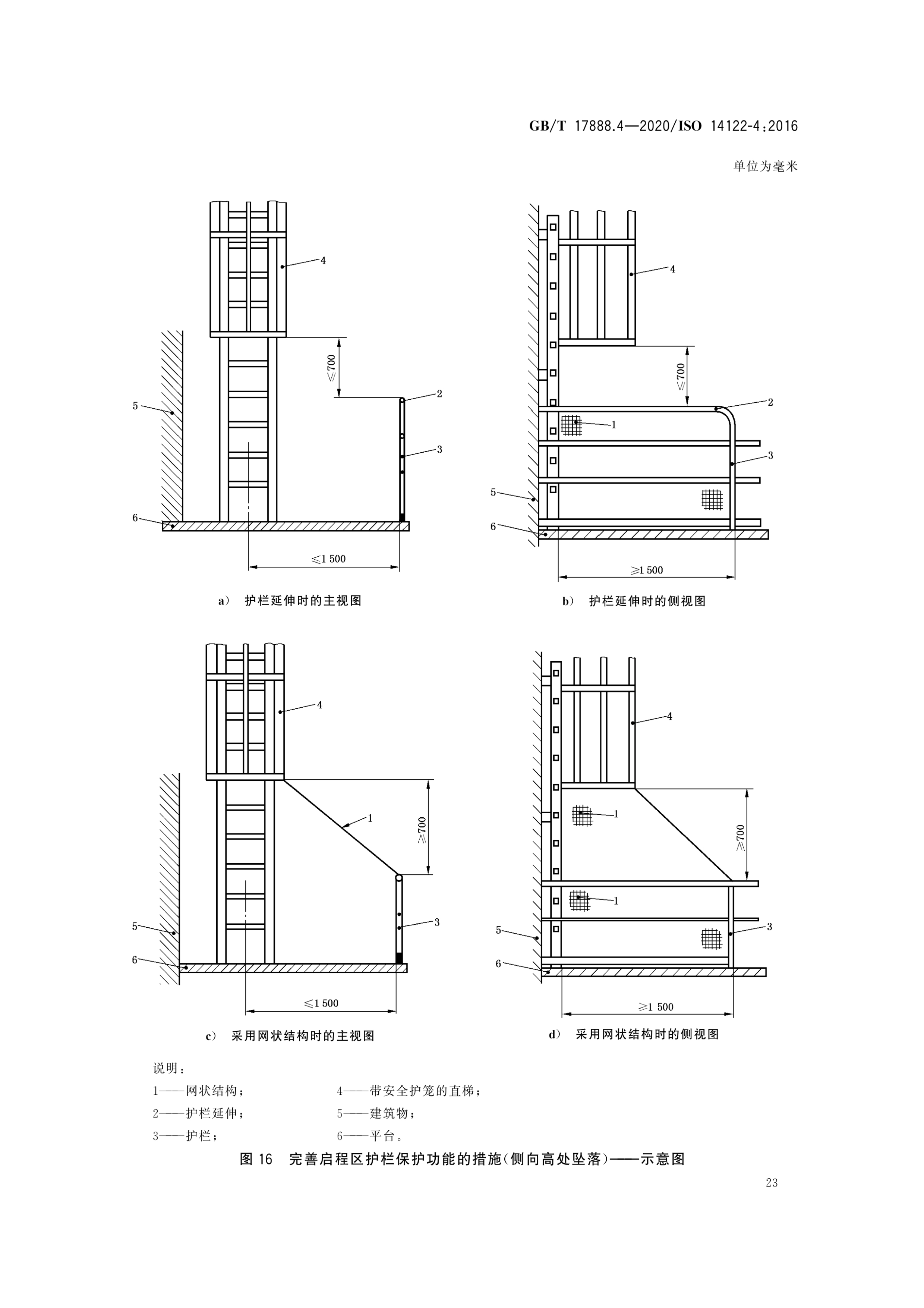
p data-id="sztur21yvsqu">《机械安全—接近机械的固定设施—第4
图片尺寸2479x3508
某钢梯节点构造图集施工图下载
图片尺寸845x596
这个图钢爬梯aa b3 b3 c3分别多长
图片尺寸1500x2000
钢梯图集节点资料下载-23个钢梯节点详图(两跑,三跑,钢结构等)
图片尺寸3000x2250
钢结构设计消防钢楼梯钢结构设计
图片尺寸640x455
钢梯
图片尺寸1130x714
室内施工图钢结构楼梯踏步做法节点大样图
图片尺寸960x1280
原创钢梯cad施工图版权可商用
图片尺寸304x453
钢爬梯
图片尺寸1394x835
某钢梯节点构造cad图集
图片尺寸351x250
【钢梯大样图】室外钢楼梯
图片尺寸1311x927
钢板梯
图片尺寸616x821