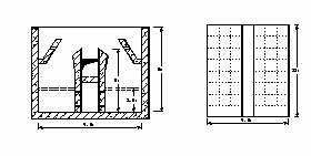
v型滤池cad

分享v型滤池工艺资料下载
图片尺寸560x323![[分享]v型滤池设备资料下载](https://imgs.wantubizhi.com/img/A1A61BAA66193547F3A6DD7D8EE527E9BF21E8DDB8AB53FBF8CED595069FE1C30CB6E68E2522FAD2A0FD3843731400657978DB1619E9B6BFD27ADF8E04C620008FFBFE219EC6F88833F6B8D6D893591D9B48A28E529797E4B4533BB990BAAB6F)
[分享]v型滤池设备资料下载
图片尺寸1600x1200
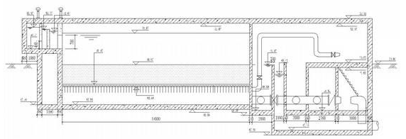
v型滤池的常见问题以及处理办法
图片尺寸420x230![[分享]净水v型滤池设计资料下载](https://imgs.wantubizhi.com/img/A1A61BAA66193547F3A6DD7D8EE527E9BB2DC4E64ACF4011CC9CDD87456621325EF212125E3A126F5191A0093DA12267BEDDE64C7DDF8DF930A902B95BB00065A4C6BB4815FFC3CE0B79B0985A4185CEC2B471F11C30D4025ACCCF132AB2CD62)
[分享]净水v型滤池设计资料下载
图片尺寸560x407
室内水厂v型滤池的操作步骤是什么
图片尺寸572x196
室内水厂v型滤池的操作步骤是什么
图片尺寸280x141
v型滤池操作之前的准备工作
图片尺寸350x269
v型滤池操作之前的准备工作
图片尺寸512x352
分享v型滤池图集资料下载
图片尺寸560x420
科普互动滤池圈的大vv型滤池
图片尺寸570x397
分享v型滤池结构资料下载
图片尺寸560x316
科普互动滤池圈的大vv型滤池
图片尺寸652x353
生物膜生物滤池
图片尺寸960x720
v型滤池的运行模式和维护
图片尺寸566x255
v型滤池的常见问题以及处理办法
图片尺寸502x308
科普互动 | 滤池圈的大v——v型滤池
图片尺寸329x341
中小型自来水厂滤池冲洗的基本要求和操作方式
图片尺寸350x300
d型滤池
图片尺寸400x264
生活污水处理中水回用水施工图(导流曝气生物滤池)
图片尺寸760x571
分享滤池cad图资料下载
图片尺寸560x338